Planning application

25/02234/LBC

13 Fettes Row Stockbridge Edinburgh EH3 6RH

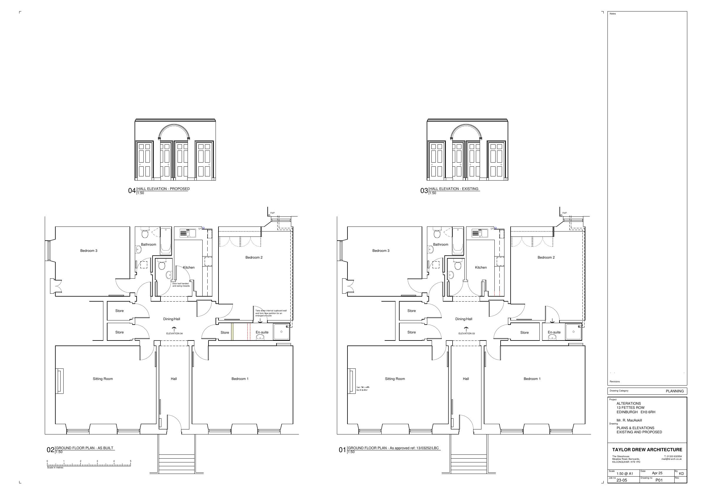
Internal cupboard removed to enlarge Bedroom 2 en-suite; all works remain entirely within the flat, no external impact. .

Status: Permission Is Not RequiredCategory: Internal Works & AccessibilityReceived: 30 April 2025

Core Details

Reference
25/02234/LBC
Address
13 Fettes Row Stockbridge Edinburgh EH3 6RH
Status
Permission Is Not Required
Category
Internal Works & Accessibility
Impact Scale
1/10

Timeline

Received
Validated
Last Scraped
Record Created

Additional Application Data

Latitude
55.9591402
Longitude
-3.2006663

Application Summary

AI Summary

Internal cupboard removed to enlarge Bedroom 2 en-suite; all works remain entirely within the flat, no external impact. .

Original Description

Minor alterations to an internal cupboard to enlarge an en-suite.

Supporting Documents (3)