Planning application

25/02237/LBC

8A Abbotsford Crescent Edinburgh EH10 5DY

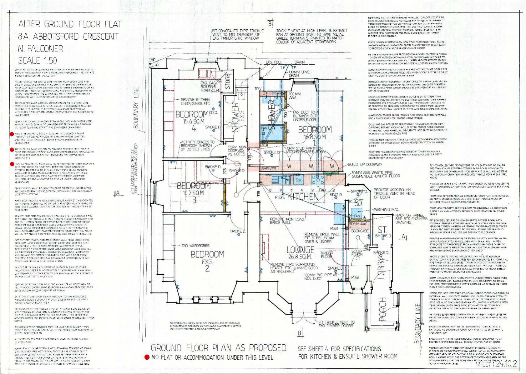
Lower-ground flat at 8A Abbotsford Crescent rearrangedkitchen relocated, partitions removed for larger lounge, new en-suite shower added; all works confined indoors. .

Status: Application GrantedCategory: Internal Works & AccessibilityReceived: 1 May 2025

Core Details

Reference
25/02237/LBC
Address
8A Abbotsford Crescent Edinburgh EH10 5DY
Status
Application Granted
Category
Internal Works & Accessibility
Impact Scale
2/10

Timeline

Received
Validated
Last Scraped
Record Created

Additional Application Data

Latitude
55.9318757
Longitude
-3.2127104

Application Summary

AI Summary

Lower-ground flat at 8A Abbotsford Crescent rearrangedkitchen relocated, partitions removed for larger lounge, new en-suite shower added; all works confined indoors. .

Original Description

Internal alterations to lower ground floor flat to re-position kitchen, form open planned lounge and en-suite shower room (this replaces previous approval LBC application 24/04981/LBC).

Supporting Documents (4)