Planning application

25/02238/FUL

29 Craiglockhart Loan Wester Craiglockhart Edinburgh EH14 1JR

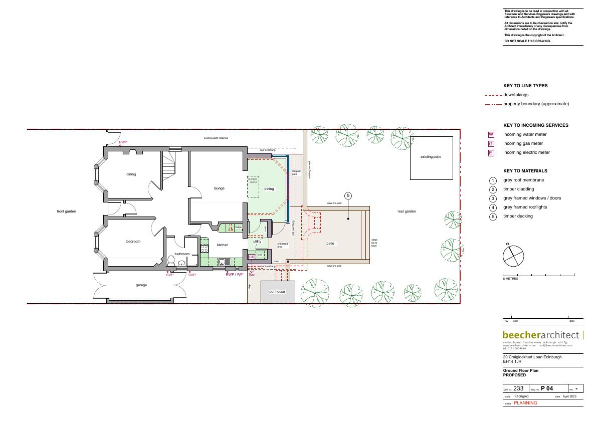
Back conservatory replaced by full-width single-storey rear extension with flat grey roof, rooflights, timber cladding, plus enlarged patio and light garden re-landscaping. .

Status: Application GrantedCategory: Extensions & EnlargementsReceived: 1 May 2025

Core Details

Reference
25/02238/FUL
Address
29 Craiglockhart Loan Wester Craiglockhart Edinburgh EH14 1JR
Status
Application Granted
Category
Extensions & Enlargements
Impact Scale
3/10

Timeline

Received
Validated
Last Scraped
Record Created

Additional Application Data

Latitude
55.9216625
Longitude
-3.24518

Application Summary

AI Summary

Back conservatory replaced by full-width single-storey rear extension with flat grey roof, rooflights, timber cladding, plus enlarged patio and light garden re-landscaping. .

Original Description

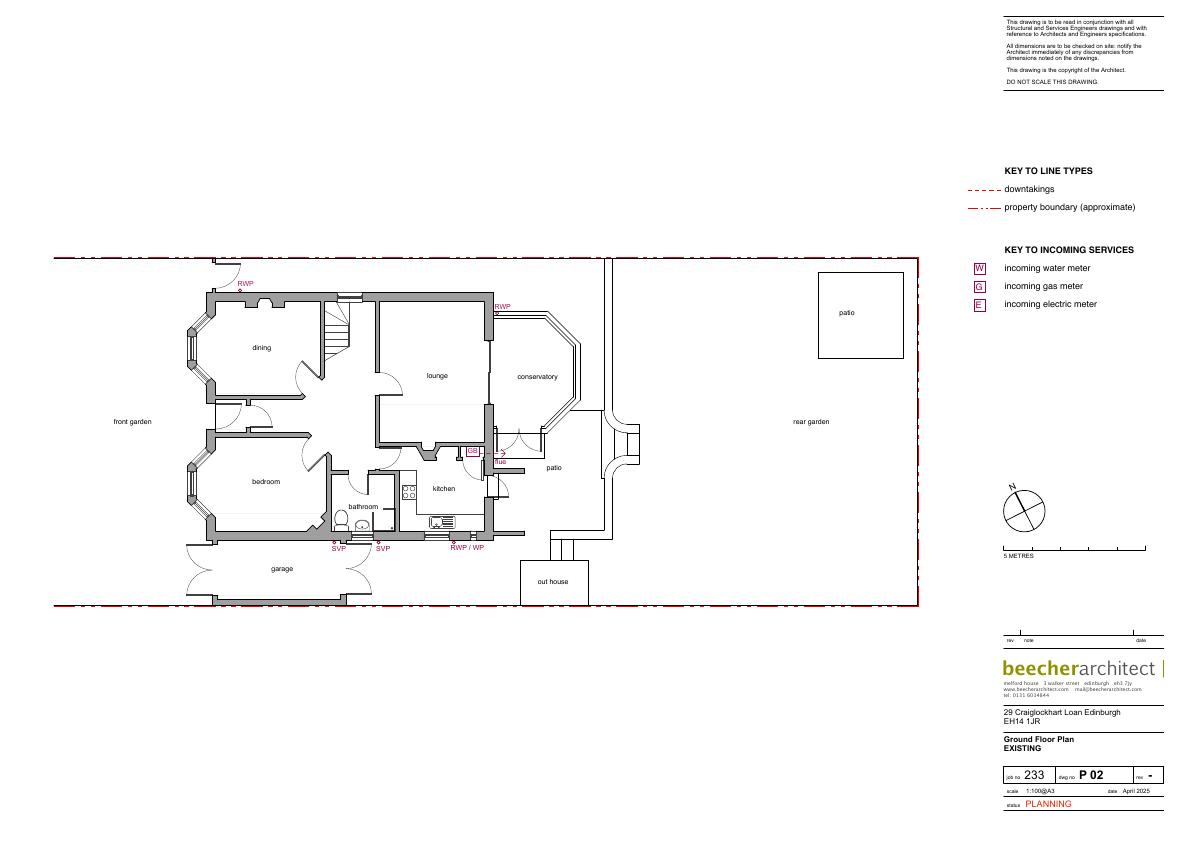
Removal of existing conservatory and new ground floor extension to rear with associated alterations and landscaping.

Supporting Documents (5)