Planning application

25/02257/FUL

12 Bellevue Gardens Broughton Edinburgh EH7 4JX

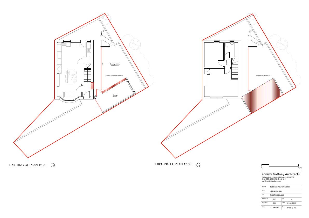
Single-storey side/rear garage rebuilt and extended, creating a timber-clad living room directly off the hall; modest footprint increase into garden, no upper-floor changes. .

Status: Application GrantedCategory: Extensions & EnlargementsReceived: 1 May 2025

Core Details

Reference
25/02257/FUL
Address
12 Bellevue Gardens Broughton Edinburgh EH7 4JX
Status
Application Granted
Category
Extensions & Enlargements
Impact Scale
3/10

Timeline

Received
Validated
Last Scraped
Record Created

Additional Application Data

Latitude
55.964017
Longitude
-3.1897912

Application Summary

AI Summary

Single-storey side/rear garage rebuilt and extended, creating a timber-clad living room directly off the hall; modest footprint increase into garden, no upper-floor changes. .

Original Description

Conversion of existing garage and extension of garage, to create a new living room to serve the existing house. Minor internal alterations at ground floor to connect house to new living room.

Supporting Documents (5)