Planning application

25/02280/LBC

12 School Brae Cramond Edinburgh EH4 6JN

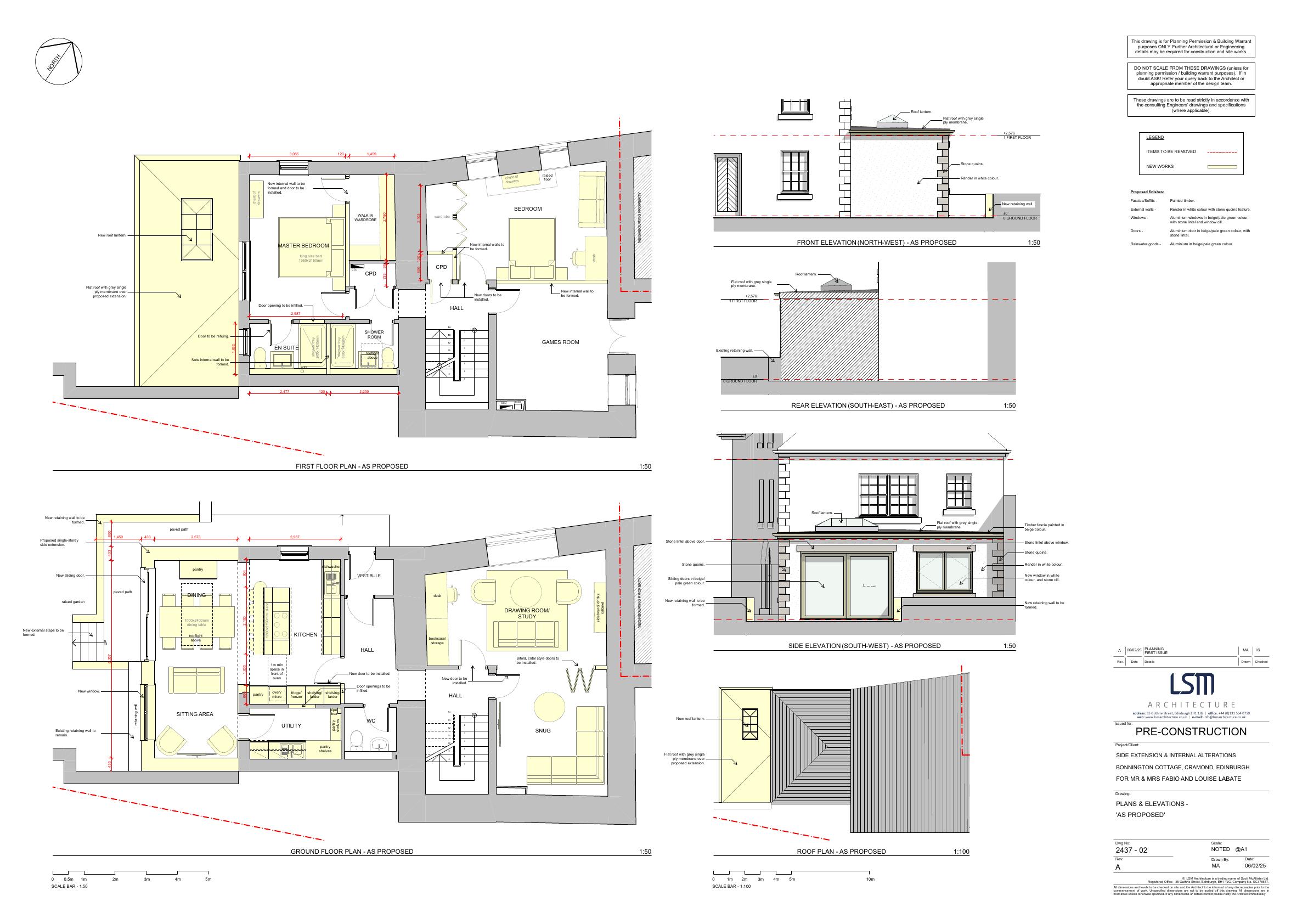
Single-storey flat-roof side/rear extension to Bordington Cottage creates open-plan kitchen/dining, master suite and games room, with roof lantern, sliding doors and stone/render finish; internal replan. .

Status: Application GrantedCategory: Extensions & EnlargementsReceived: 2 May 2025

Core Details

Reference
25/02280/LBC
Address
12 School Brae Cramond Edinburgh EH4 6JN
Status
Application Granted
Category
Extensions & Enlargements
Impact Scale
3/10

Timeline

Received
2 May 2025
Validated
2 May 2025
Last Scraped
3 October 2025
Record Created
8 May 2025

Application Summary

AI Summary

Single-storey flat-roof side/rear extension to Bordington Cottage creates open-plan kitchen/dining, master suite and games room, with roof lantern, sliding doors and stone/render finish; internal replan. .

Original Description

Proposed side extension and alterations.

Related Applications (1)

  • 25/01073/FULApplication Granted(3 March 2025)

    Side extension with small lean-to removal, internal re-plan and upgraded openings/roof lines to streamline the existing house. .

Supporting Documents (5)