Planning application

25/02282/FUL

25 Greenbank Gardens Greenbank Edinburgh EH10 5SN

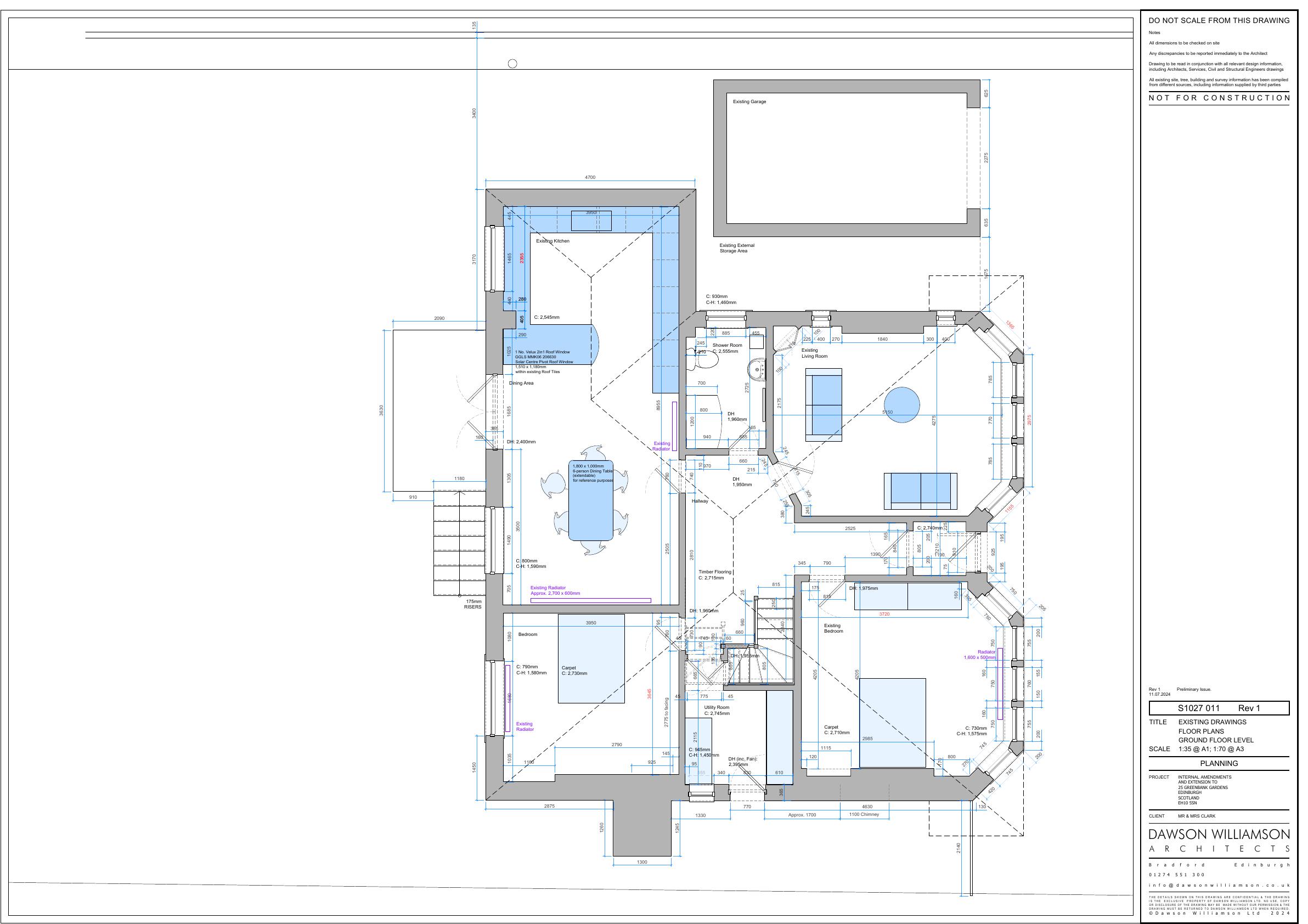
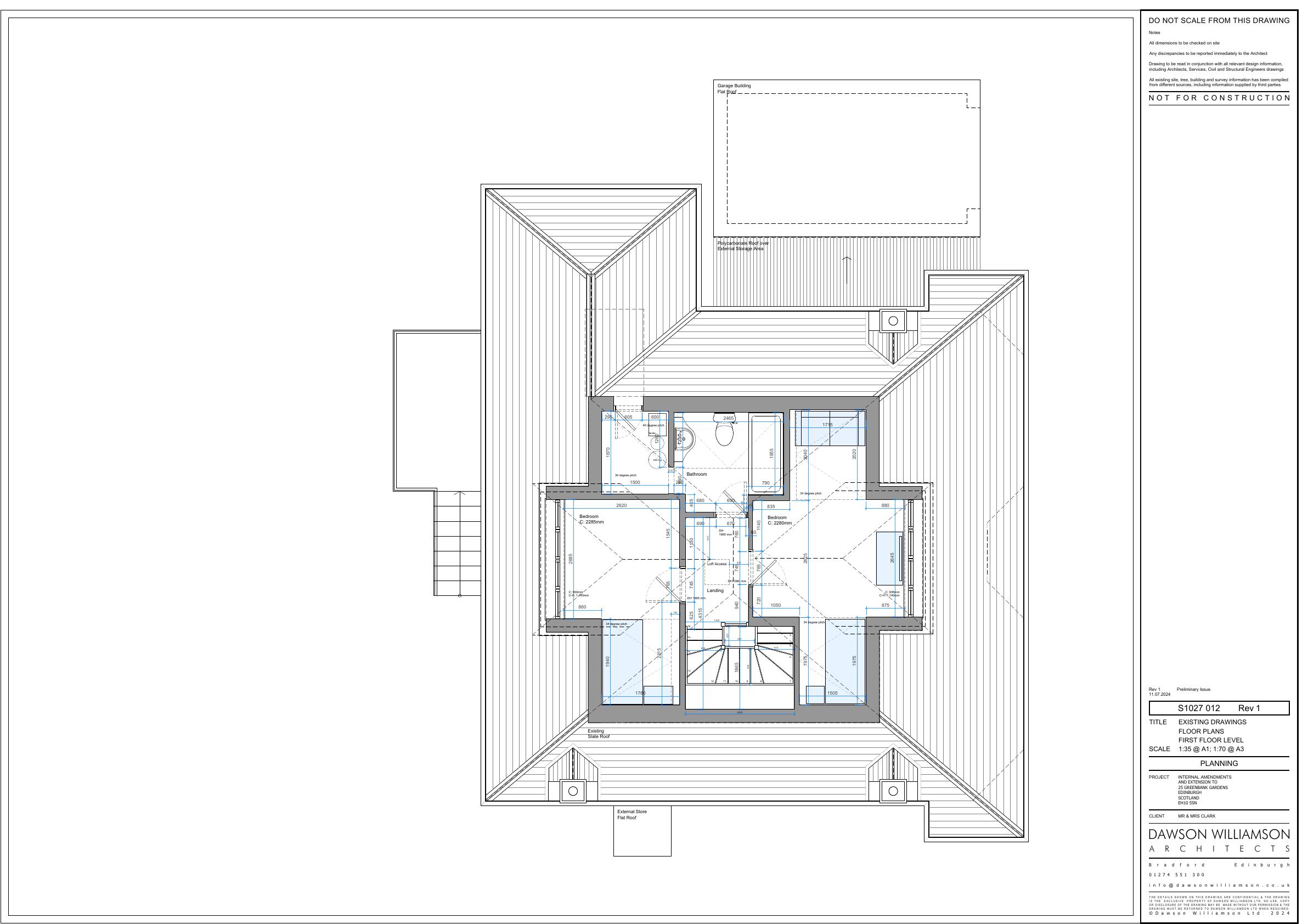
Adds single-storey side and rear wings to the detached house, enlarging kitchen-diner and utility, plus full internal refresh; no height change, footprint modestly expanded within garden plot. .

Status: Application GrantedCategory: Extensions & EnlargementsReceived: 2 May 2025

Core Details

Reference
25/02282/FUL
Address
25 Greenbank Gardens Greenbank Edinburgh EH10 5SN
Status
Application Granted
Category
Extensions & Enlargements
Impact Scale
3/10

Timeline

Received
Validated
Last Scraped
Record Created

Additional Application Data

Latitude
55.9168658
Longitude
-3.2185465

Application Summary

AI Summary

Adds single-storey side and rear wings to the detached house, enlarging kitchen-diner and utility, plus full internal refresh; no height change, footprint modestly expanded within garden plot. .

Original Description

Single-storey rear & side extensions and internal refurbishment of existing domestic dwelling house.

Supporting Documents (5)