Planning application

25/02299/CLP

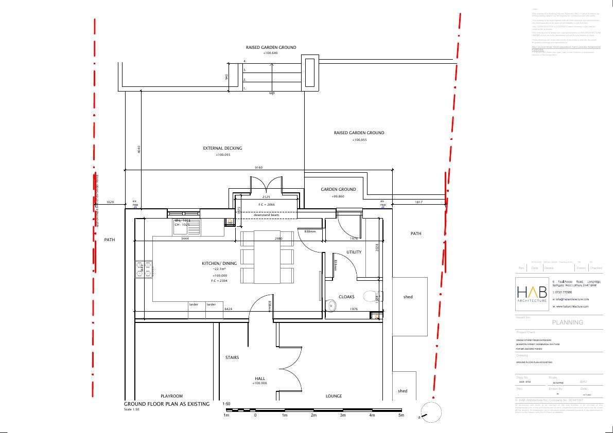
26 Martin Street Edinburgh EH17 8GB

Single-storey rear add-on creates garden-facing living/dining space with flat rooflight, sliding doors, new patio and minor garden regrading; footprint grows ~3 m deep, no street impact. .

Status: Application GrantedCategory: Extensions & EnlargementsReceived: 5 May 2025

Core Details

Reference
25/02299/CLP
Address
26 Martin Street Edinburgh EH17 8GB
Status
Application Granted
Category
Extensions & Enlargements
Impact Scale
2/10

Timeline

Received
5 May 2025
Validated
5 May 2025
Last Scraped
3 October 2025
Record Created
11 May 2025

Application Summary

AI Summary

Single-storey rear add-on creates garden-facing living/dining space with flat rooflight, sliding doors, new patio and minor garden regrading; footprint grows ~3 m deep, no street impact. .

Original Description

Proposal for the erection of a single storey rear extension to existing dwelling house.

Related Applications (1)

  • 25/00314/CLPApplication Granted(21 January 2025)

    Single-storey rear garden room enlarges kitchen-dining area, introducing rooflight, sliding patio doors and new garden steps. .

Supporting Documents (5)