Planning application

25/02310/LBC

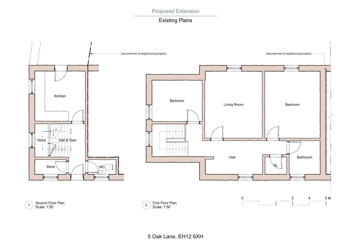
5 Oak Lane Edinburgh EH12 6XH

Single-storey rear kitchen wing with metal roof and skylights, modest footprint, plus felling/replacing trees and driveway landscaping at listed 5 Oak Lane. .

Status: Application WithdrawnCategory: Extensions & EnlargementsReceived: 6 May 2025

Core Details

Reference
25/02310/LBC
Address
5 Oak Lane Edinburgh EH12 6XH
Status
Application Withdrawn
Category
Extensions & Enlargements
Impact Scale
2/10

Timeline

Received
6 May 2025
Validated
6 May 2025
Last Scraped
3 October 2025
Record Created
12 May 2025

Application Summary

AI Summary

Single-storey rear kitchen wing with metal roof and skylights, modest footprint, plus felling/replacing trees and driveway landscaping at listed 5 Oak Lane. .

Original Description

Single storey kitchen extension to rear of existing building.

Related Applications (2)

  • 25/05755/FULApplication Granted(30 October 2025)

    Single-storey side/rear wing adds open-plan kitchen-dining-living area; pitched roof, rendered walls and slate match existing house. .

  • 25/04213/LBCApplication Granted(15 August 2025)

    Modest single-storey rear/side addition to the listed cottage, linked lightly to create open kitchen-dining-living space while retaining main frontage. .

Supporting Documents (5)