Planning application

25/02317/CLP

5 Carfrae Road Blackhall Edinburgh EH4 3SD

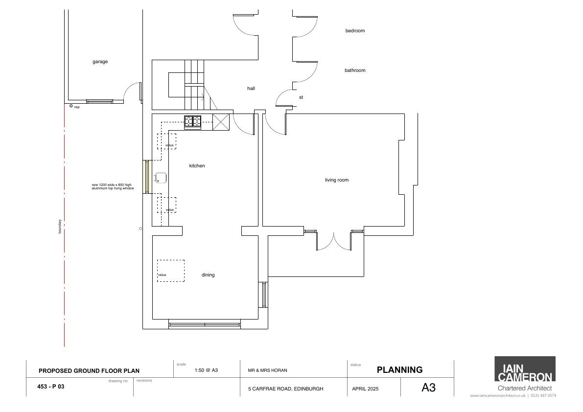
1.2 m-wide, 0.85 m-high aluminium top-hung window added to kitchens west wall at 5 Carfrae Rd, improving daylight with no other changes to the bungalows fabric. .

Status: Application GrantedCategory: Windows, Doors & GlazingReceived: 6 May 2025

Core Details

Reference
25/02317/CLP
Address
5 Carfrae Road Blackhall Edinburgh EH4 3SD
Status
Application Granted
Category
Windows, Doors & Glazing
Impact Scale
2/10

Timeline

Received
Validated
Last Scraped
Record Created

Additional Application Data

Latitude
55.9594454
Longitude
-3.2615323

Application Summary

AI Summary

1.2 m-wide, 0.85 m-high aluminium top-hung window added to kitchens west wall at 5 Carfrae Rd, improving daylight with no other changes to the bungalows fabric. .

Original Description

Proposed new external window to kitchen.

Supporting Documents (5)