Planning application

25/02321/FUL

9 Clermiston Gardens Barnton Edinburgh EH4 7DX

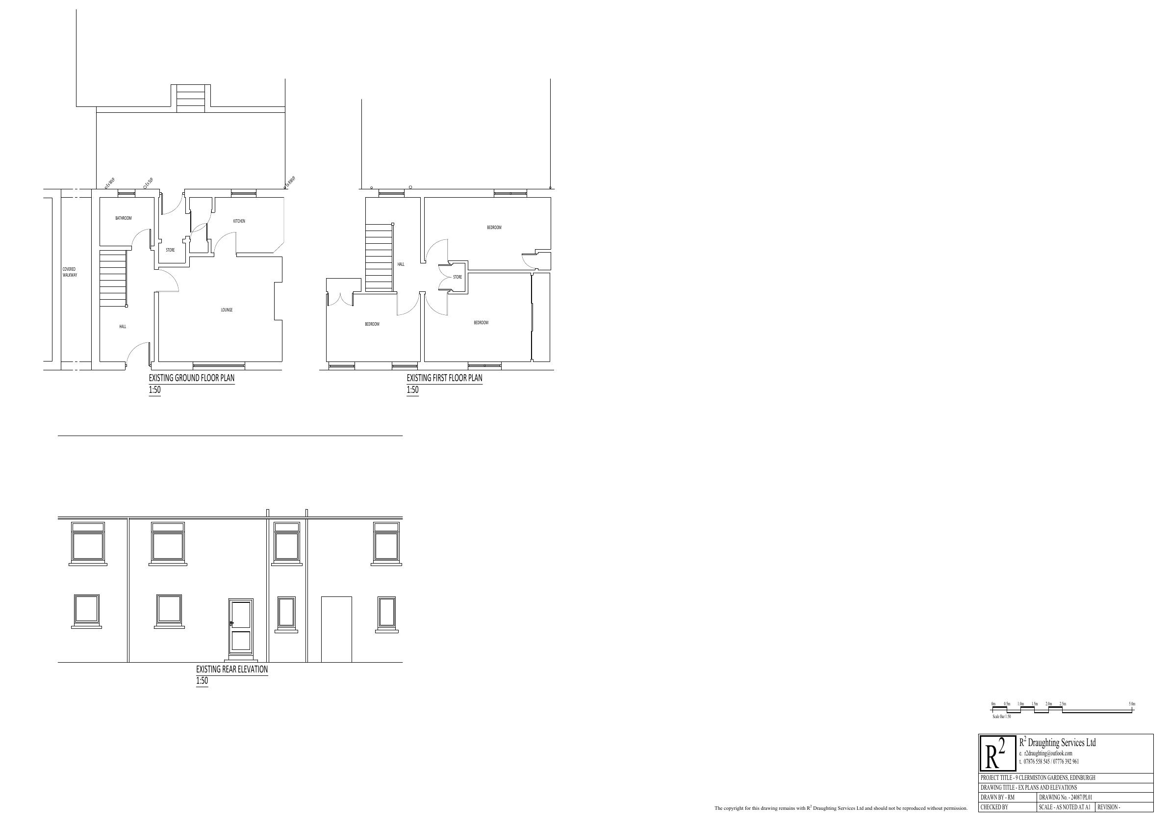
Full-width rear extension: ground-floor kitchen opening to garden plus compact first-floor en-suite above, projecting 4 m with flat roof and matching brickwork; frontage untouched. .

Status: Application GrantedCategory: Extensions & EnlargementsReceived: 6 May 2025

Core Details

Reference
25/02321/FUL
Address
9 Clermiston Gardens Barnton Edinburgh EH4 7DX
Status
Application Granted
Category
Extensions & Enlargements
Impact Scale
4/10

Timeline

Received
6 May 2025
Validated
6 May 2025
Last Scraped
3 October 2025
Record Created
12 May 2025

Application Summary

AI Summary

Full-width rear extension: ground-floor kitchen opening to garden plus compact first-floor en-suite above, projecting 4 m with flat roof and matching brickwork; frontage untouched. .

Original Description

Construction of single storey extension to rear of existing dwelling house to form a kitchen on ground floor level. (AS AMENDED)

Related Applications (1)

  • 25/00610/FULApplication Refused(6 February 2025)

    Rear single- and two-storey extension enlarges kitchen and adds first-floor en-suite, modestly increasing footprint and height within the garden.

Supporting Documents (4)