Planning application

25/02326/LBC

Flat 4 8 Drumsheugh Gardens New Town Edinburgh EH3 7QJ

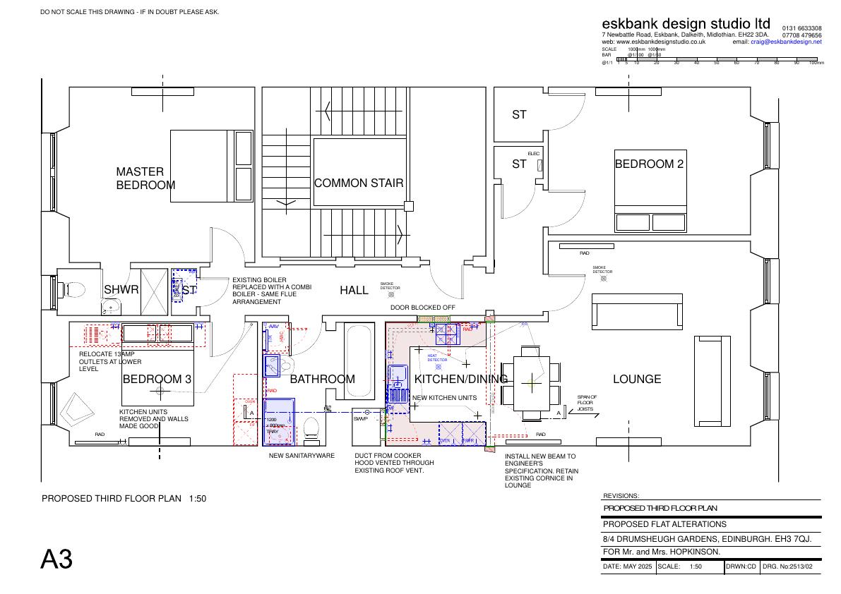
Third-floor flat re-plan at 8/4 Drumsheugh Gardens: knock through kitchen/dining to lounge by removing load-bearing wall, fit steel beam, rejig bedroom 3 and bathroom, no external changes.

Status: Application GrantedCategory: Internal Works & AccessibilityReceived: 6 May 2025

Core Details

Reference
25/02326/LBC
Address
Flat 4 8 Drumsheugh Gardens New Town Edinburgh EH3 7QJ
Status
Application Granted
Category
Internal Works & Accessibility
Impact Scale
2/10

Timeline

Received
Validated
Last Scraped
Record Created

Additional Application Data

Latitude
55.9516423
Longitude
-3.2124068

Application Summary

AI Summary

Third-floor flat re-plan at 8/4 Drumsheugh Gardens: knock through kitchen/dining to lounge by removing load-bearing wall, fit steel beam, rejig bedroom 3 and bathroom, no external changes.

Original Description

Removal of internal load bearing wall, installation of beam.

Supporting Documents (4)