Planning application

25/02340/LBC

25 Bellevue Crescent Edinburgh EH3 6NF

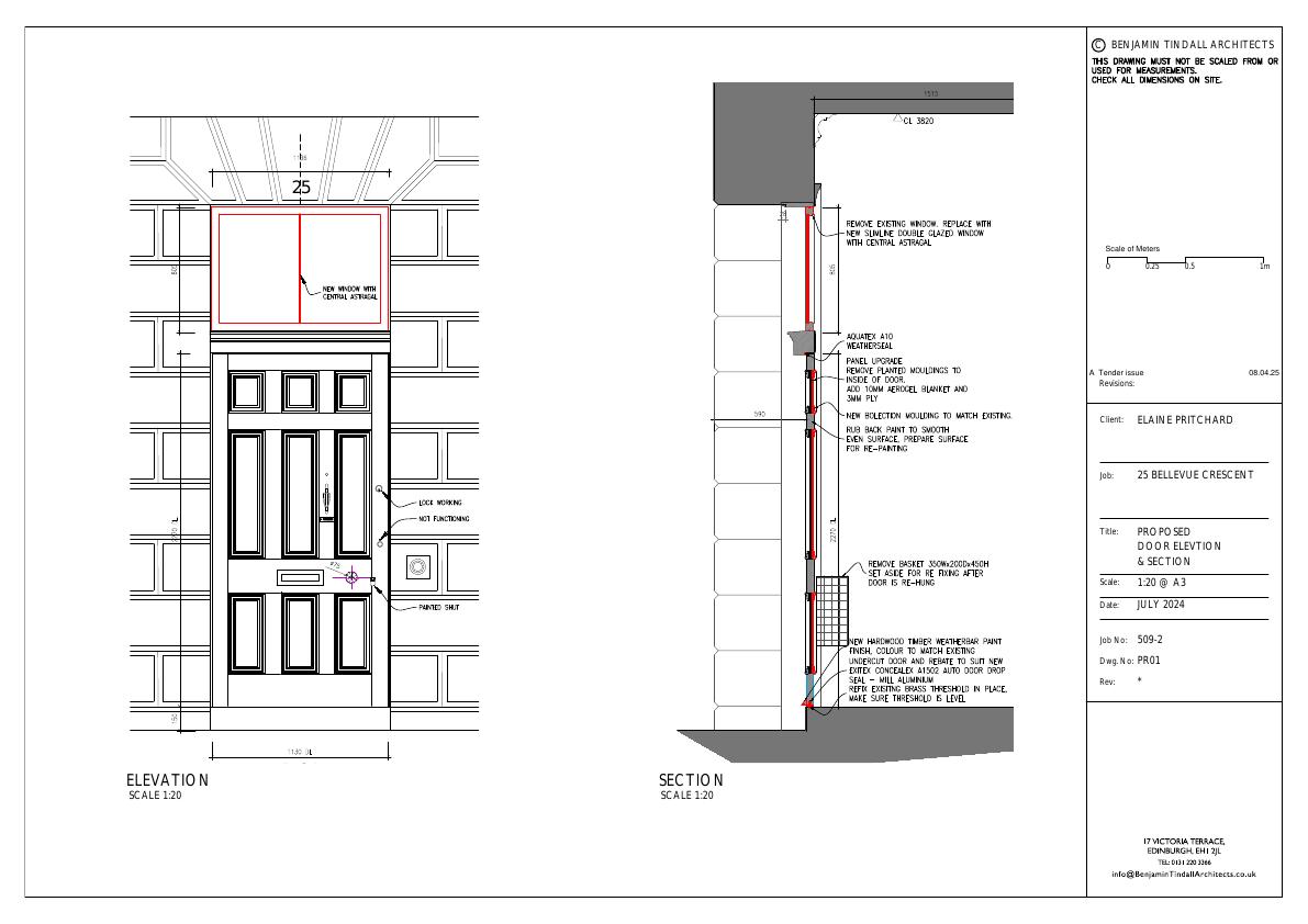
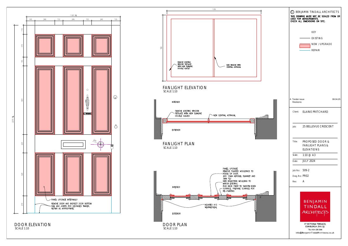
Front door and fanlight at 25 Bellevue Crescent refurbished and insulated with slimline double glazing and central astragal; no external change; internal vestibule door draft-sealed. .

Status: Application GrantedCategory: Windows, Doors & GlazingReceived: 7 May 2025

Core Details

Reference
25/02340/LBC
Address
25 Bellevue Crescent Edinburgh EH3 6NF
Status
Application Granted
Category
Windows, Doors & Glazing
Impact Scale
2/10

Timeline

Received
Validated
Last Scraped
Record Created

Additional Application Data

Latitude
55.9610087
Longitude
-3.1943495

Application Summary

AI Summary

Front door and fanlight at 25 Bellevue Crescent refurbished and insulated with slimline double glazing and central astragal; no external change; internal vestibule door draft-sealed. .

Original Description

Proposals to repair and thermally improve main entrance door and fanlight. The door will feature panel upgrades internally, and will not have externally visible alterations. The later fanlight glazing will be replaced with double glazing within the original casing, a centre astragal will be installed to return the entrance facade to its originally intended appearance in line with neighbouring properties. The secondary internal vestibule door will undergo necessary repairs and draft proofing.

Supporting Documents (5)