Planning application

25/02342/CLP

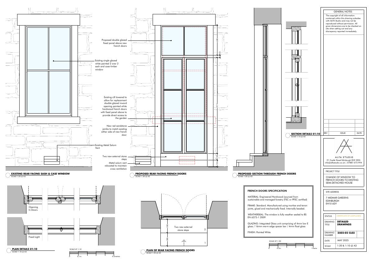
7 Midmar Gardens Edinburgh EH10 6DY

Rear sash window replaced with full-height double-glazed timber French doors, opening directly to garden; minor alteration to one elevation with small stone steps added. .

Status: Application GrantedCategory: Windows, Doors & GlazingReceived: 7 May 2025

Core Details

Reference
25/02342/CLP
Address
7 Midmar Gardens Edinburgh EH10 6DY
Status
Application Granted
Category
Windows, Doors & Glazing
Impact Scale
2/10

Timeline

Received
Validated
Last Scraped
Record Created

Additional Application Data

Latitude
55.9234401
Longitude
-3.2016446

Application Summary

AI Summary

Rear sash window replaced with full-height double-glazed timber French doors, opening directly to garden; minor alteration to one elevation with small stone steps added. .

Original Description

Change of window to French doors to rear facing elevation of existing semi-detached house.

Supporting Documents (4)