Planning application

25/02351/FUL

Flat 1 38 Woodhall Millbrae Juniper Green EH14 5BH

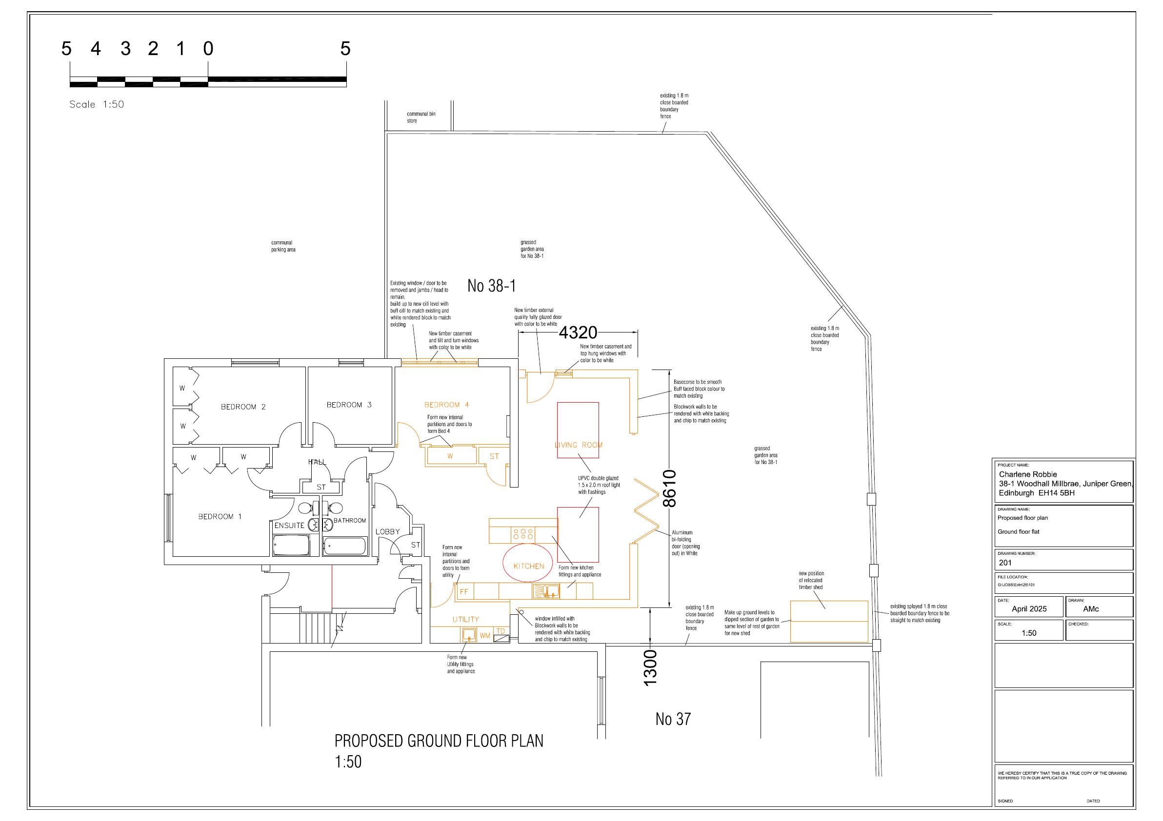
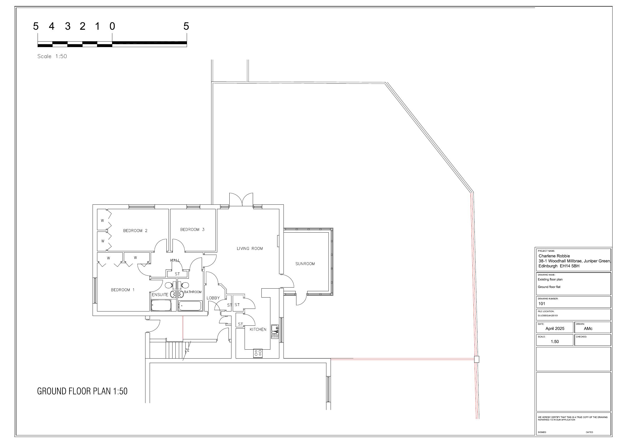
Larger single-storey rear build replaces glazed conservatory, creating open-plan kitchen-living area and fourth bedroom for ground-floor flat at 38 Woodhall Millbrae. .

Status: Application GrantedCategory: Extensions & EnlargementsReceived: 7 May 2025

Core Details

Reference
25/02351/FUL
Address
Flat 1 38 Woodhall Millbrae Juniper Green EH14 5BH
Status
Application Granted
Category
Extensions & Enlargements
Impact Scale
3/10

Timeline

Received
Validated
Last Scraped
Record Created

Additional Application Data

Latitude
55.9054628
Longitude
-3.2763284

Application Summary

AI Summary

Larger single-storey rear build replaces glazed conservatory, creating open-plan kitchen-living area and fourth bedroom for ground-floor flat at 38 Woodhall Millbrae. .

Original Description

Demolition of conservatory and erection of rear single storey extension.

Supporting Documents (5)