Planning application

25/02359/FUL

195 The Murrays Edinburgh EH17 8UN

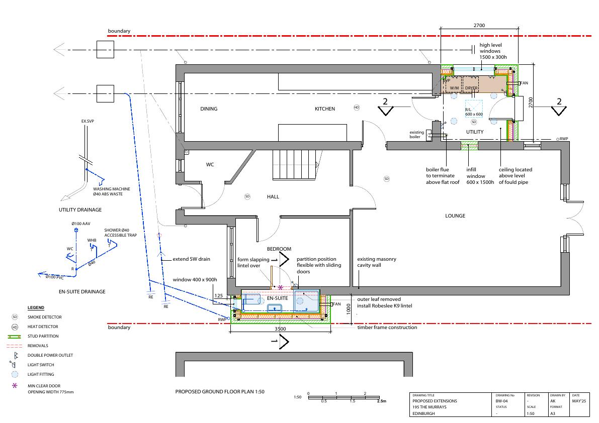
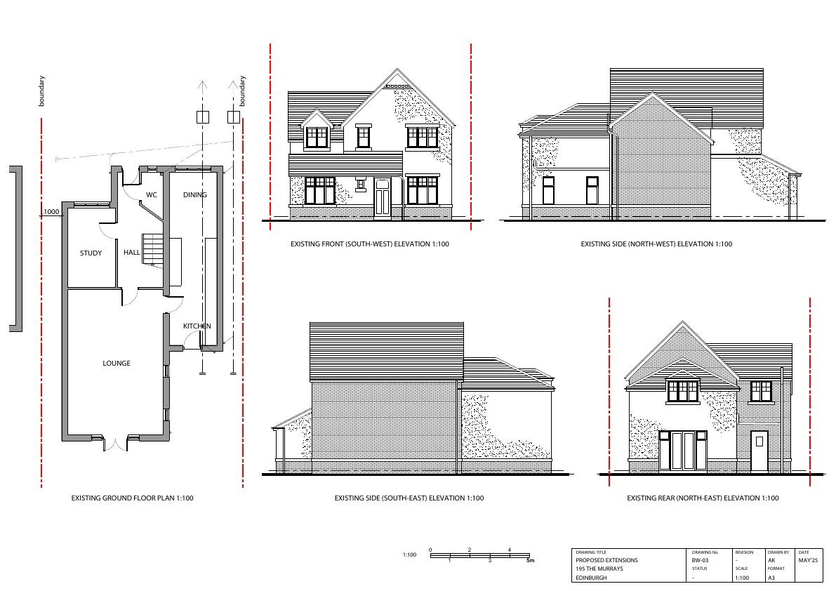
Single-storey wings to side and rear add utility, bedroom and en-suite, extend kitchen-diner; modest footprint increase within garden plot. .

Status: Application GrantedCategory: Extensions & EnlargementsReceived: 7 May 2025

Core Details

Reference
25/02359/FUL
Address
195 The Murrays Edinburgh EH17 8UN
Status
Application Granted
Category
Extensions & Enlargements
Impact Scale
3/10

Timeline

Received
Validated
Last Scraped
Record Created

Additional Application Data

Latitude
55.8969934
Longitude
-3.1489782

Application Summary

AI Summary

Single-storey wings to side and rear add utility, bedroom and en-suite, extend kitchen-diner; modest footprint increase within garden plot. .

Original Description

Proposed single storey extensions to both side and rear of property.

Supporting Documents (5)