Planning application

25/02362/FUL

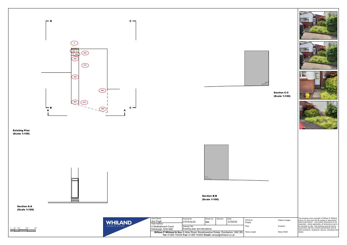
4 Strathalmond Court Edinburgh EH4 8AE

Modular galvanised-steel wheelchair ramp with handrails added to front entrance, replacing steps for level access; no other structural changes or footprint increases. .

Status: Application GrantedCategory: Internal Works & AccessibilityReceived: 8 May 2025

Core Details

Reference
25/02362/FUL
Address
4 Strathalmond Court Edinburgh EH4 8AE
Status
Application Granted
Category
Internal Works & Accessibility
Impact Scale
2/10

Timeline

Received
Validated
Last Scraped
Record Created

Additional Application Data

Latitude
55.9614394
Longitude
-3.317853

Application Summary

AI Summary

Modular galvanised-steel wheelchair ramp with handrails added to front entrance, replacing steps for level access; no other structural changes or footprint increases. .

Original Description

Installation of semi permanent modular galvanised steel disabled access ramp.

Supporting Documents (5)