Planning application

25/02370/FUL

54 Pilrig Street Edinburgh EH6 5AS

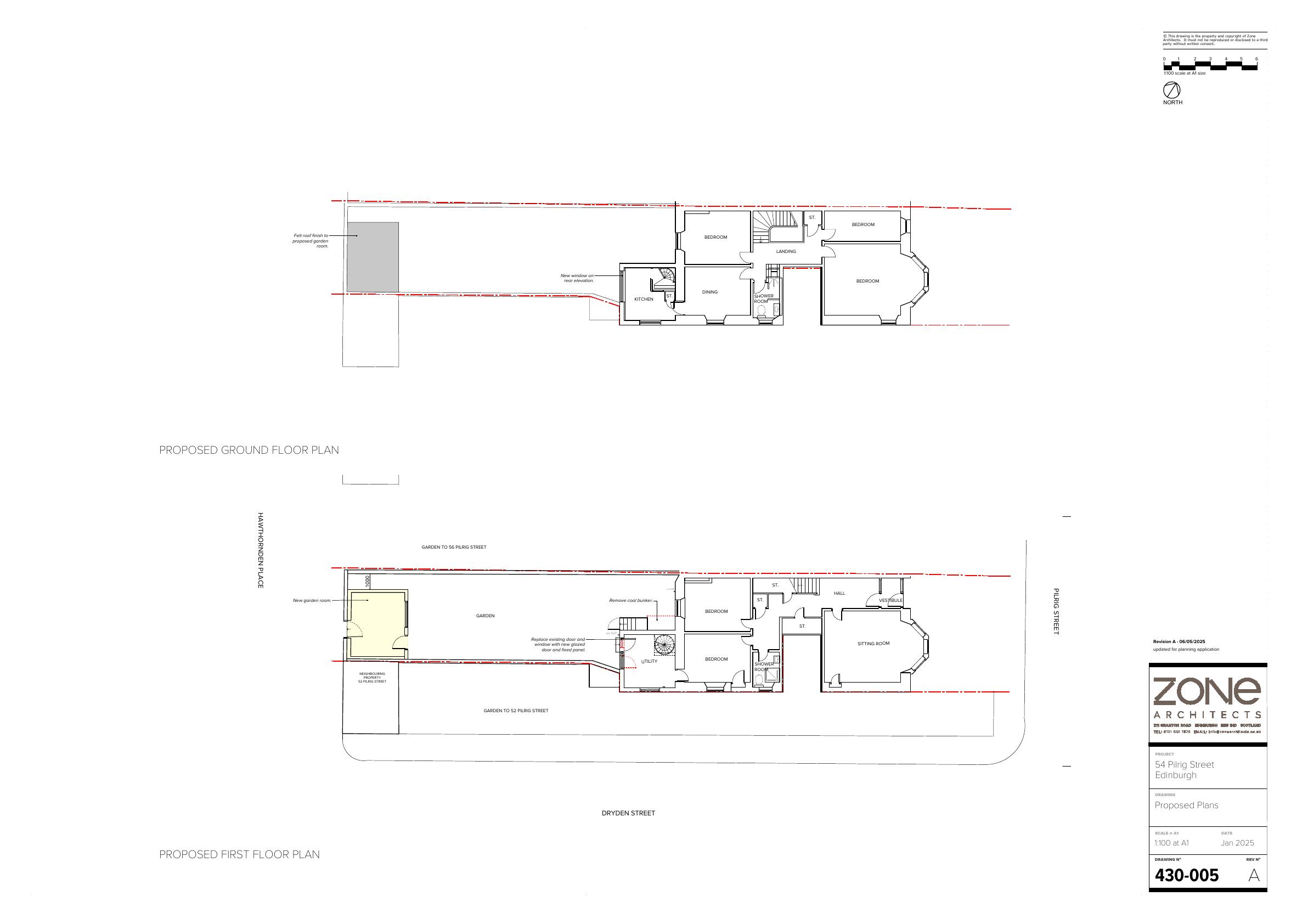
Rear lean-to removed, patio doors added, and a modest single-storey garden room built at far end of long garden, all kept low and out of street view. .

Status: Application GrantedCategory: Outbuildings & Ancillary StructuresReceived: 8 May 2025

Core Details

Reference
25/02370/FUL
Address
54 Pilrig Street Edinburgh EH6 5AS
Status
Application Granted
Category
Outbuildings & Ancillary Structures
Impact Scale
2/10

Timeline

Received
Validated
Last Scraped
Record Created

Additional Application Data

Latitude
55.9653638
Longitude
-3.1803528

Application Summary

AI Summary

Rear lean-to removed, patio doors added, and a modest single-storey garden room built at far end of long garden, all kept low and out of street view. .

Original Description

Alterations to rear of house and new garden room.

Supporting Documents (5)