Planning application

25/02378/WINPA

10 Laverockbank Grove Edinburgh EH5 3DD

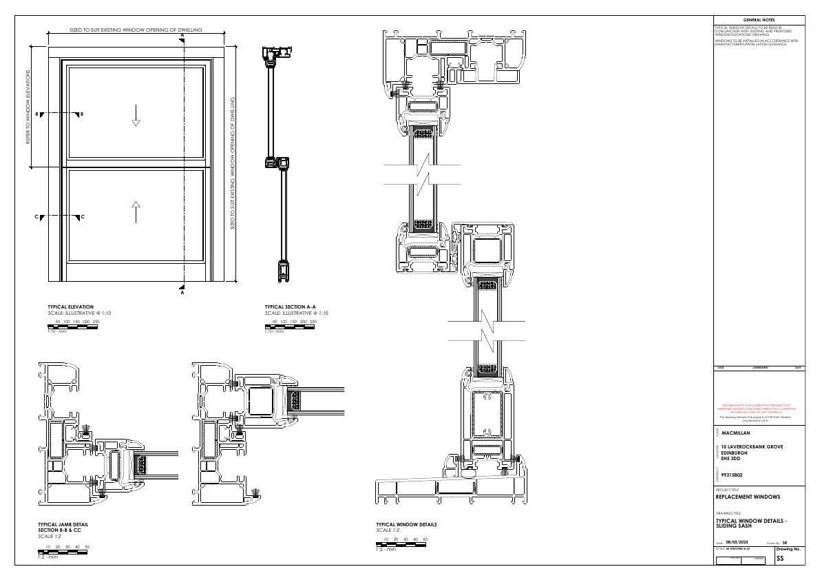
Timber sashes at 10 Laverockbank Grove will be replaced with double-glazed uPVC sliding units, matching the original bays but improving energy performance.

Status: Application ApprovedCategory: Windows, Doors & GlazingReceived: 8 May 2025

Core Details

Reference
25/02378/WINPA
Address
10 Laverockbank Grove Edinburgh EH5 3DD
Status
Application Approved
Category
Windows, Doors & Glazing
Impact Scale
2/10

Timeline

Received
Validated
Last Scraped
Record Created

Additional Application Data

Latitude
55.9778941
Longitude
-3.2017681

Application Summary

AI Summary

Timber sashes at 10 Laverockbank Grove will be replaced with double-glazed uPVC sliding units, matching the original bays but improving energy performance.

Original Description

Proposed replacement of existing timber sash and case windows for new double glazed Pvcu sliding sash windows.

Supporting Documents (4)