Planning application

25/02384/LBC

3F2 90 Hamilton Place Edinburgh EH3 5AZ

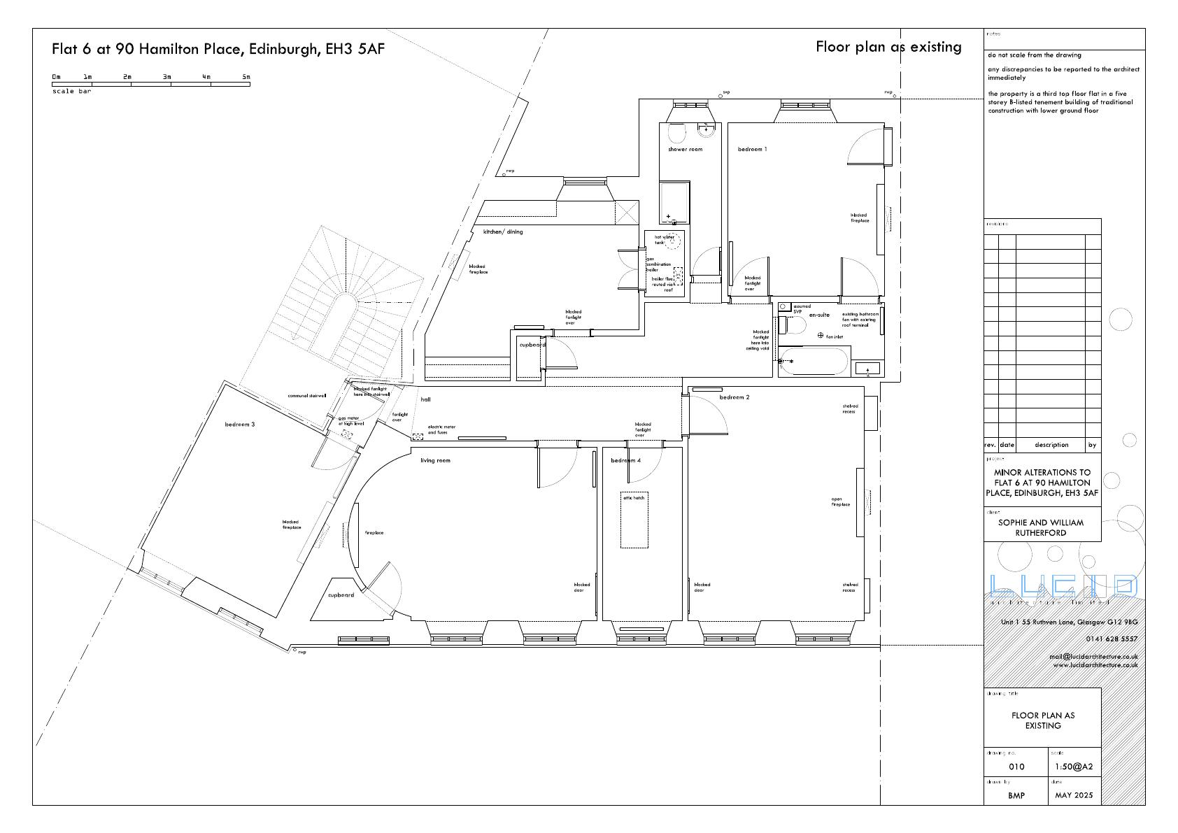
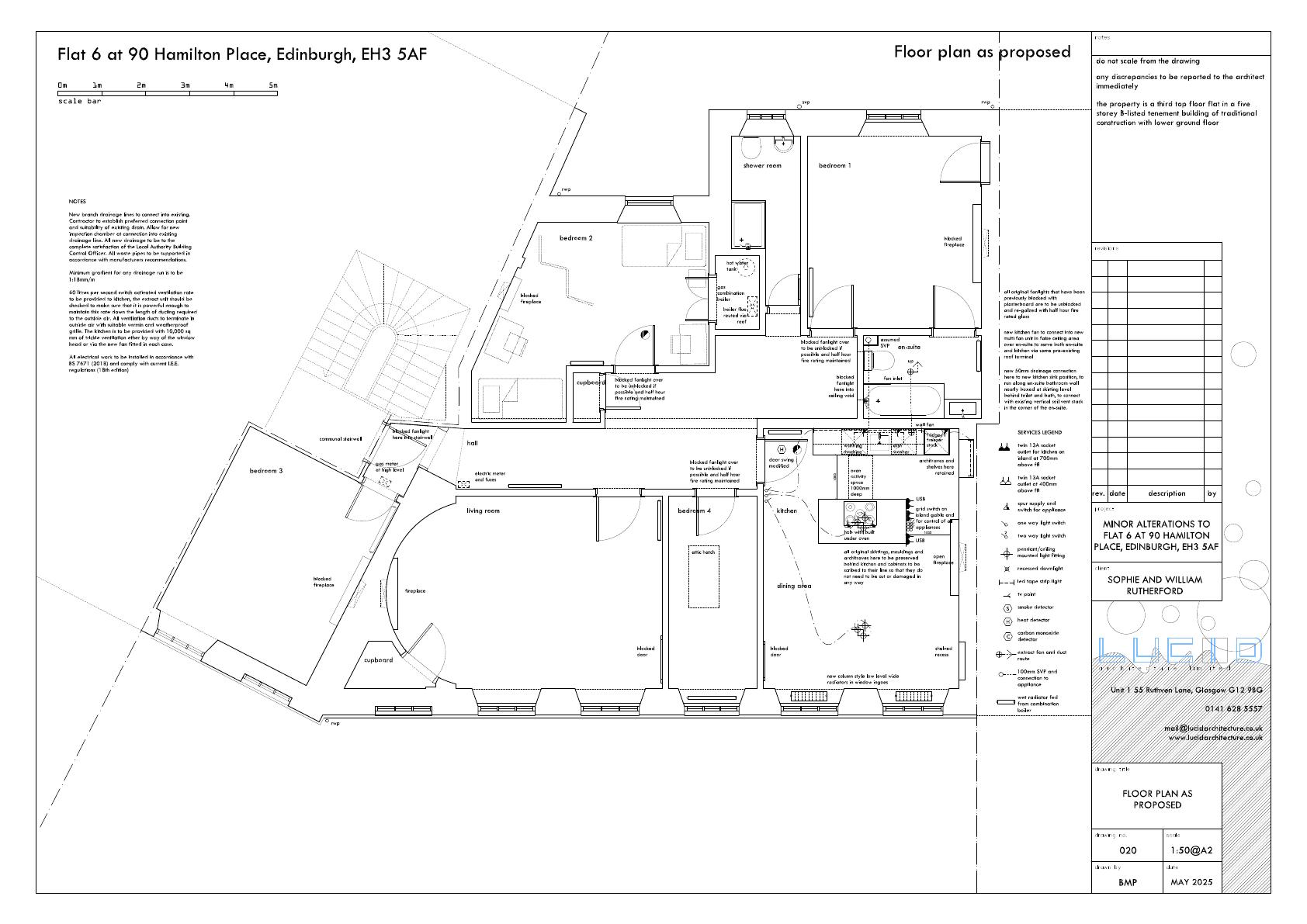
Kitchen relocated internally within third-floor B-listed flat, keeping all original walls, cornices and faade untouched; purely internal, service rerouting only.

Status: Application GrantedCategory: Internal Works & AccessibilityReceived: 9 May 2025

Core Details

Reference
25/02384/LBC
Address
3F2 90 Hamilton Place Edinburgh EH3 5AZ
Status
Application Granted
Category
Internal Works & Accessibility
Impact Scale
2/10

Timeline

Received
9 May 2025
Validated
12 May 2025
Last Scraped
3 October 2025
Record Created
18 May 2025

Application Summary

AI Summary

Kitchen relocated internally within third-floor B-listed flat, keeping all original walls, cornices and faade untouched; purely internal, service rerouting only.

Original Description

Minor alterations to move kitchen within flat with no changes to original features whatsoever.

Related Applications (1)

  • 25/01220/LBCApplication Granted(10 March 2025)

    Nine timber sash windows could be swapped for slimline double-glazed, like-for-like units, improving insulation while retaining historic look at B-listed Hamilton Place flat. .

Supporting Documents (5)