Planning application

25/02401/FUL

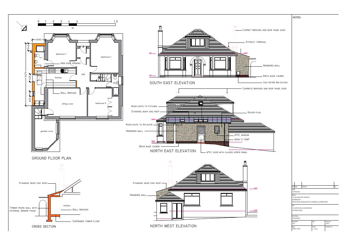
25 Buckstone Avenue Edinburgh EH10 6QL

Side-facing single-storey timber-frame extension (8 m 1.7 m) widens kitchen and adds en-suite; zinc roof with rooflights, rendered finish; both existing chimneys to be removed, roof repaired. .

Status: Application GrantedCategory: Extensions & EnlargementsReceived: 12 May 2025

Core Details

Reference
25/02401/FUL
Address
25 Buckstone Avenue Edinburgh EH10 6QL
Status
Application Granted
Category
Extensions & Enlargements
Impact Scale
2/10

Timeline

Received
Validated
Last Scraped
Record Created

Additional Application Data

Latitude
55.905957
Longitude
-3.2051586

Application Summary

AI Summary

Side-facing single-storey timber-frame extension (8 m 1.7 m) widens kitchen and adds en-suite; zinc roof with rooflights, rendered finish; both existing chimneys to be removed, roof repaired. .

Original Description

Single storey extension to side of bungalow to enlarge kitchen and create en-suite. Removal of 2 chimneys.

Supporting Documents (5)