Planning application

25/02409/CLP

21 Johnsburn Road Balerno EH14 7DY

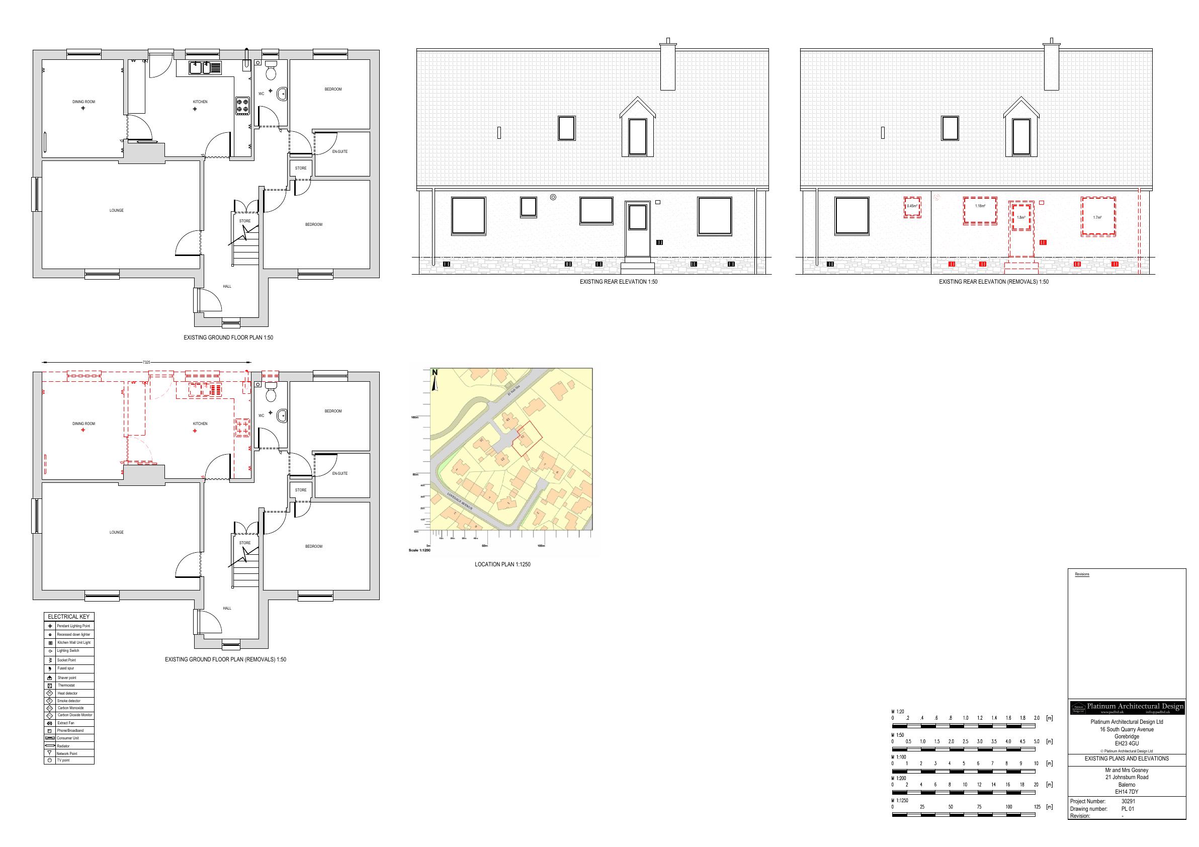
Single-storey full-width rear extension enlarges bungalow by ~30 m, creating open-plan kitchen-diner with large glazed doors and trio of slim windows under a shallow mono-pitch roof.

Status: Application GrantedCategory: Extensions & EnlargementsReceived: 12 May 2025

Core Details

Reference
25/02409/CLP
Address
21 Johnsburn Road Balerno EH14 7DY
Status
Application Granted
Category
Extensions & Enlargements
Impact Scale
3/10

Timeline

Received
Validated
Last Scraped
Record Created

Additional Application Data

Latitude
55.8830118
Longitude
-3.3440584

Application Summary

AI Summary

Single-storey full-width rear extension enlarges bungalow by ~30 m, creating open-plan kitchen-diner with large glazed doors and trio of slim windows under a shallow mono-pitch roof.

Original Description

Extension to rear of dwelling house.

Supporting Documents (4)