Planning application

25/02452/FUL

107 Craiglea Drive Morningside Edinburgh EH10 5PQ

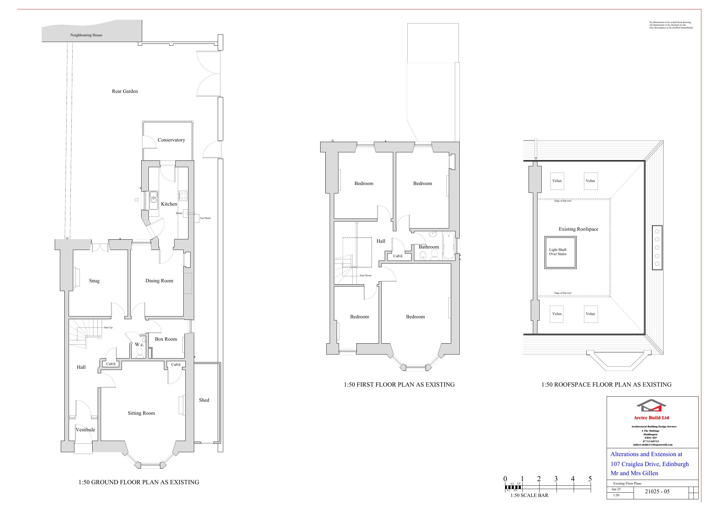
Rear conservatory replaced by full-width mono-pitch single-storey extension; attic converted to extra bedroom; new gable window and garden re-landscapingmodest upgrade to this stone family home. .

Status: Application GrantedCategory: Extensions & EnlargementsReceived: 13 May 2025

Core Details

Reference
25/02452/FUL
Address
107 Craiglea Drive Morningside Edinburgh EH10 5PQ
Status
Application Granted
Category
Extensions & Enlargements
Impact Scale
3/10

Timeline

Received
Validated
Last Scraped
Record Created

Additional Application Data

Latitude
55.921091
Longitude
-3.2171304

Application Summary

AI Summary

Rear conservatory replaced by full-width mono-pitch single-storey extension; attic converted to extra bedroom; new gable window and garden re-landscapingmodest upgrade to this stone family home. .

Original Description

Removal of existing conservatory to rear of dwelling. Construction of new single storey extension to rear of dwelling, formed with mono-pitch roof. Landscaping to existing rear garden. Formation of new window through gable wall of existing house. Conversion of roofspace to new bedroom, utilising existing velux roof light positions.

Supporting Documents (5)