Planning application

25/02453/FUL

30 Annandale Street Lane Edinburgh EH7 4LS

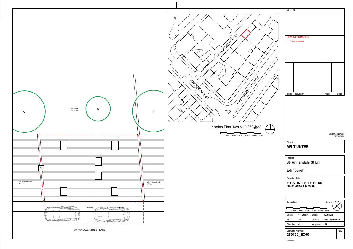
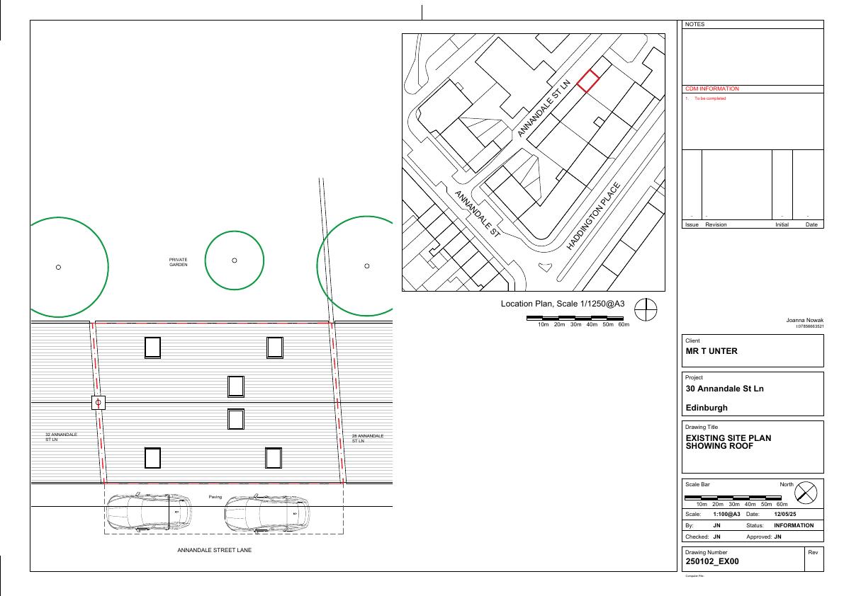
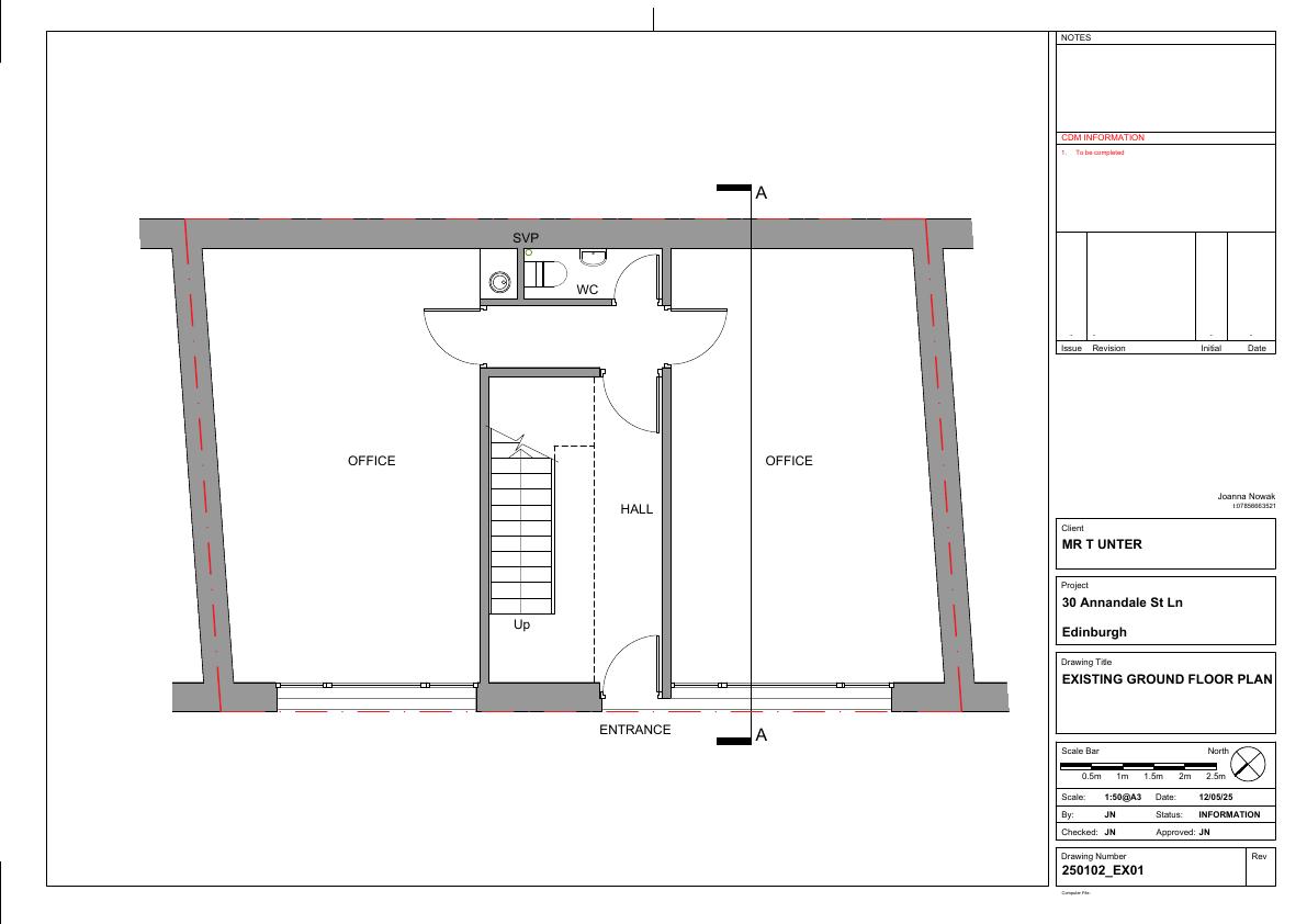
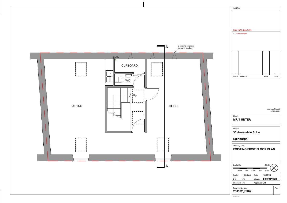
Two-storey mews at 30 Annandale St Lane to get larger rear rooflights, reopen three blocked windows and add a small extract fan outlet; no structural expansion, just better light and ventilation. .

Status: Not Development-Permission Not RequiredCategory: Roof Works & DormersReceived: 13 May 2025

Core Details

Reference
25/02453/FUL
Address
30 Annandale Street Lane Edinburgh EH7 4LS
Status
Not Development-Permission Not Required
Category
Roof Works & Dormers
Impact Scale
2/10

Timeline

Received
13 May 2025
Validated
13 May 2025
Last Scraped
3 October 2025
Record Created
19 May 2025

Application Summary

AI Summary

Two-storey mews at 30 Annandale St Lane to get larger rear rooflights, reopen three blocked windows and add a small extract fan outlet; no structural expansion, just better light and ventilation. .

Original Description

Proposed changes include larger rooflights to the rear elevation of the existing mews, opening up blocked windows, and a new extract fan outlet to the rear elevation. Some proposed works and change of use have already been granted with Planning Permission 25/01227/FUL.

Related Applications (4)

  • 26/00962/LBCAwaiting Assessment(11 March 2026)

    Front-facing mews upgraded with larger glazed openings and subtle timber privacy screens, refreshing street outlook with minimal structural change.

  • 25/02446/LBCApplication Granted(13 May 2025)

    Add two rooflights to pitched roof, reopen three blocked wall openings and fit small extract vent on compact two-storey office at 30 Annandale St Lane. .

  • 25/01227/FULApplication Granted(10 March 2025)

    Former office to be reconfigured internally into one family home, with upgrades to meet domestic standards; no external expansion flagged. .

  • 25/01228/LBCPermission Is Not Required(10 March 2025)

    Former Annandale St Lane office may be reworked internally into one family home, updating services, layouts and rooflights while leaving shell largely intact. .

Supporting Documents (5)