Planning application

25/02459/FUL

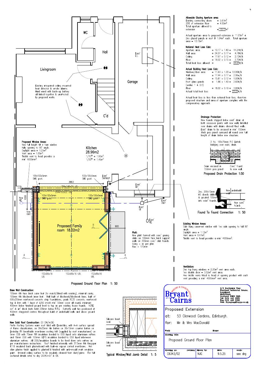
53 Clerwood Gardens Clerwood Edinburgh EH12 8PX

Solid-roof, single-storey 18 m rear extension replaces the existing conservatory, featuring brick/timber walls, pitched roof with rooflights and full-height doors opening to the garden at 53 Clerwood Gardens. .

Status: Application GrantedCategory: Extensions & EnlargementsReceived: 13 May 2025

Core Details

Reference
25/02459/FUL
Address
53 Clerwood Gardens Clerwood Edinburgh EH12 8PX
Status
Application Granted
Category
Extensions & Enlargements
Impact Scale
3/10

Timeline

Received
Validated
Last Scraped
Record Created

Additional Application Data

Latitude
55.9500852
Longitude
-3.2890427

Application Summary

AI Summary

Solid-roof, single-storey 18 m rear extension replaces the existing conservatory, featuring brick/timber walls, pitched roof with rooflights and full-height doors opening to the garden at 53 Clerwood Gardens. .

Original Description

Remove existing conservatory structure and erect new single storey solid roof extension.

Supporting Documents (5)