Planning application

25/02464/LBC

16 Old Church Lane Edinburgh EH15 3PX

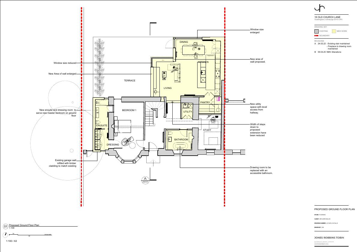
Listed Old Church Lane house to gain single-storey rear/side extension; garage becomes open-plan living space, first-floor walls removed for larger rooms, new master en-suite added. .

Status: Application GrantedCategory: Extensions & EnlargementsReceived: 13 May 2025

Core Details

Reference
25/02464/LBC
Address
16 Old Church Lane Edinburgh EH15 3PX
Status
Application Granted
Category
Extensions & Enlargements
Impact Scale
4/10

Timeline

Received
13 May 2025
Validated
13 May 2025
Last Scraped
3 October 2025
Record Created
19 May 2025

Application Summary

AI Summary

Listed Old Church Lane house to gain single-storey rear/side extension; garage becomes open-plan living space, first-floor walls removed for larger rooms, new master en-suite added. .

Original Description

Changes to previously granted scheme to alter and extend listed house in Duddingston. Works include incorporate existing garage into internal layout, remove interior partitions to form larger rooms on first floor. Remove first floor bathroom and introduce en-suite accommodation to bedroom (as amended).

Related Applications (1)

  • 23/07430/VARYPermission has been varied(4 September 2025)

    Living room projects 1 m further into garden, a new through-route carved via the existing garage, and internal rooms reshuffled without altering roofline.

Supporting Documents (5)