Planning application

25/02473/FUL

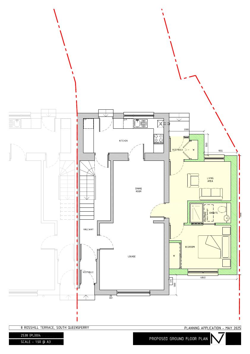
8 Rosshill Terrace South Queensferry EH30 9JS

Single-storey side wing (~11 m) along east gable adds ground-floor bedroom, ensuite and small lounge; footprint grows to c.71 m, roofline unchanged, negligible streetscape impact. .

Status: Application GrantedCategory: Extensions & EnlargementsReceived: 14 May 2025

Core Details

Reference
25/02473/FUL
Address
8 Rosshill Terrace South Queensferry EH30 9JS
Status
Application Granted
Category
Extensions & Enlargements
Impact Scale
2/10

Timeline

Received
Validated
Last Scraped
Record Created

Additional Application Data

Latitude
55.9865662
Longitude
-3.3803267

Application Summary

AI Summary

Single-storey side wing (~11 m) along east gable adds ground-floor bedroom, ensuite and small lounge; footprint grows to c.71 m, roofline unchanged, negligible streetscape impact. .

Original Description

Proposed single storey side extension.

Supporting Documents (5)