Planning application

25/02486/FUL

31 Wardie Road Trinity Edinburgh EH5 3LH

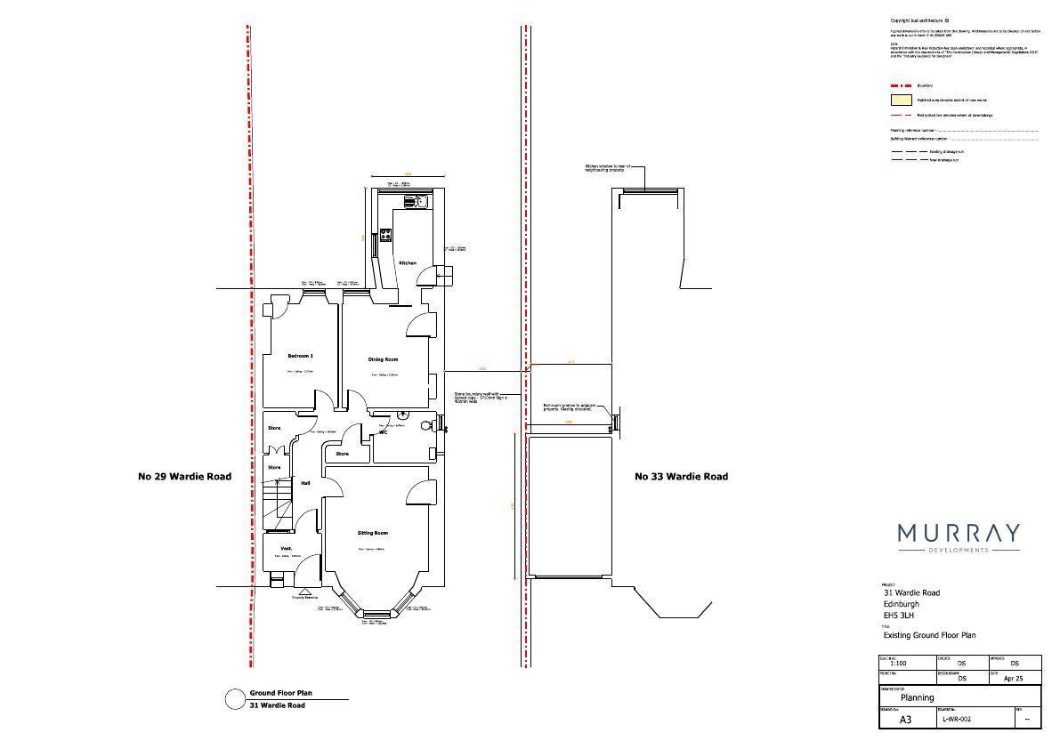
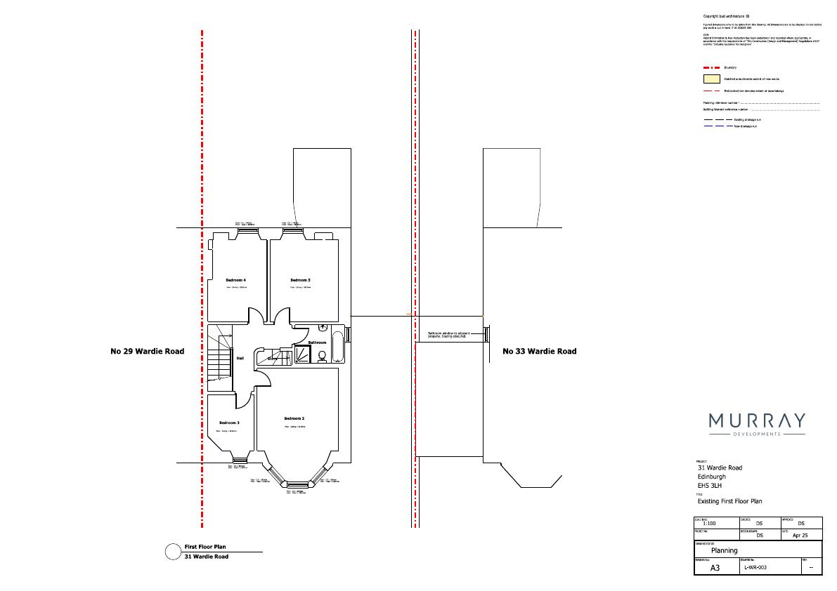
31 Wardie Rd house to gain a two-storey side wing plus single-storey rear build, boosting floor area and garden footprint while retaining suburban scale. .

Status: Application GrantedCategory: Extensions & EnlargementsReceived: 14 May 2025

Core Details

Reference
25/02486/FUL
Address
31 Wardie Road Trinity Edinburgh EH5 3LH
Status
Application Granted
Category
Extensions & Enlargements
Impact Scale
5/10

Timeline

Received
Validated
Last Scraped
Record Created

Additional Application Data

Latitude
55.973568
Longitude
-3.2124828

Application Summary

AI Summary

31 Wardie Rd house to gain a two-storey side wing plus single-storey rear build, boosting floor area and garden footprint while retaining suburban scale. .

Original Description

Introduction of two storey extension to side of property with further single storey extension to rear.

Supporting Documents (5)