Planning application

25/02501/FUL

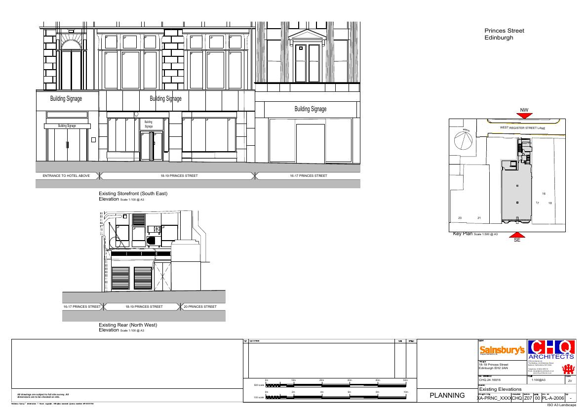
18 - 19 Princes Street Edinburgh EH2 2AN

Revamp at 16-19 Princes St: replaces ground-floor facade with full-height glazing, aluminium framing, black marble plinth, discreet louvre vents and Sainsburys Local signage. .

Status: Application GrantedCategory: Shopfront & SignageReceived: 15 May 2025

Core Details

Reference
25/02501/FUL
Address
18 - 19 Princes Street Edinburgh EH2 2AN
Status
Application Granted
Category
Shopfront & Signage
Impact Scale
2/10

Timeline

Received
15 May 2025
Validated
15 May 2025
Last Scraped
3 October 2025
Record Created
21 May 2025

Application Summary

AI Summary

Revamp at 16-19 Princes St: replaces ground-floor facade with full-height glazing, aluminium framing, black marble plinth, discreet louvre vents and Sainsburys Local signage. .

Original Description

Application for planning permission for shop front alterations.

Related Applications (1)

  • 25/02499/LBCApplication Granted(15 May 2025)

    Revised Sainsburys Local frontage at 16-19 Princes St: new full-height glazing, aluminium frame, black marble plinth, discreet louvre vents and updated signage within existing listed faade. .

Supporting Documents (4)