Planning application

25/02511/WINPA

2F1 5 Starbank Road Trinity Edinburgh EH5 3BW

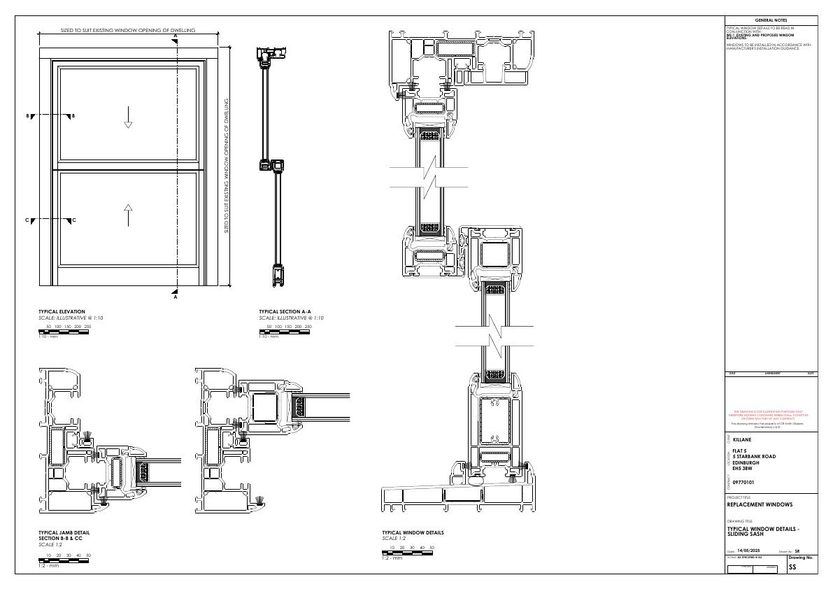
Top-floor flat at 5 Starbank Rd to swap timber sash windows for like-for-like PVCu double-glazed sliding sashes, retaining existing openings and street appearance while boosting insulation. .

Status: Application ApprovedCategory: Windows, Doors & GlazingReceived: 14 May 2025

Core Details

Reference
25/02511/WINPA
Address
2F1 5 Starbank Road Trinity Edinburgh EH5 3BW
Status
Application Approved
Category
Windows, Doors & Glazing
Impact Scale
2/10

Timeline

Received
Validated
Last Scraped
Record Created

Additional Application Data

Latitude
55.980176
Longitude
-3.1992801

Application Summary

AI Summary

Top-floor flat at 5 Starbank Rd to swap timber sash windows for like-for-like PVCu double-glazed sliding sashes, retaining existing openings and street appearance while boosting insulation. .

Original Description

Replacement of existing timber sash and case windows for new pvcu double glazed sliding sash windows.

Supporting Documents (4)