Planning application

25/02526/FUL

8 Carfrae Grove Blackhall Edinburgh EH4 3SB

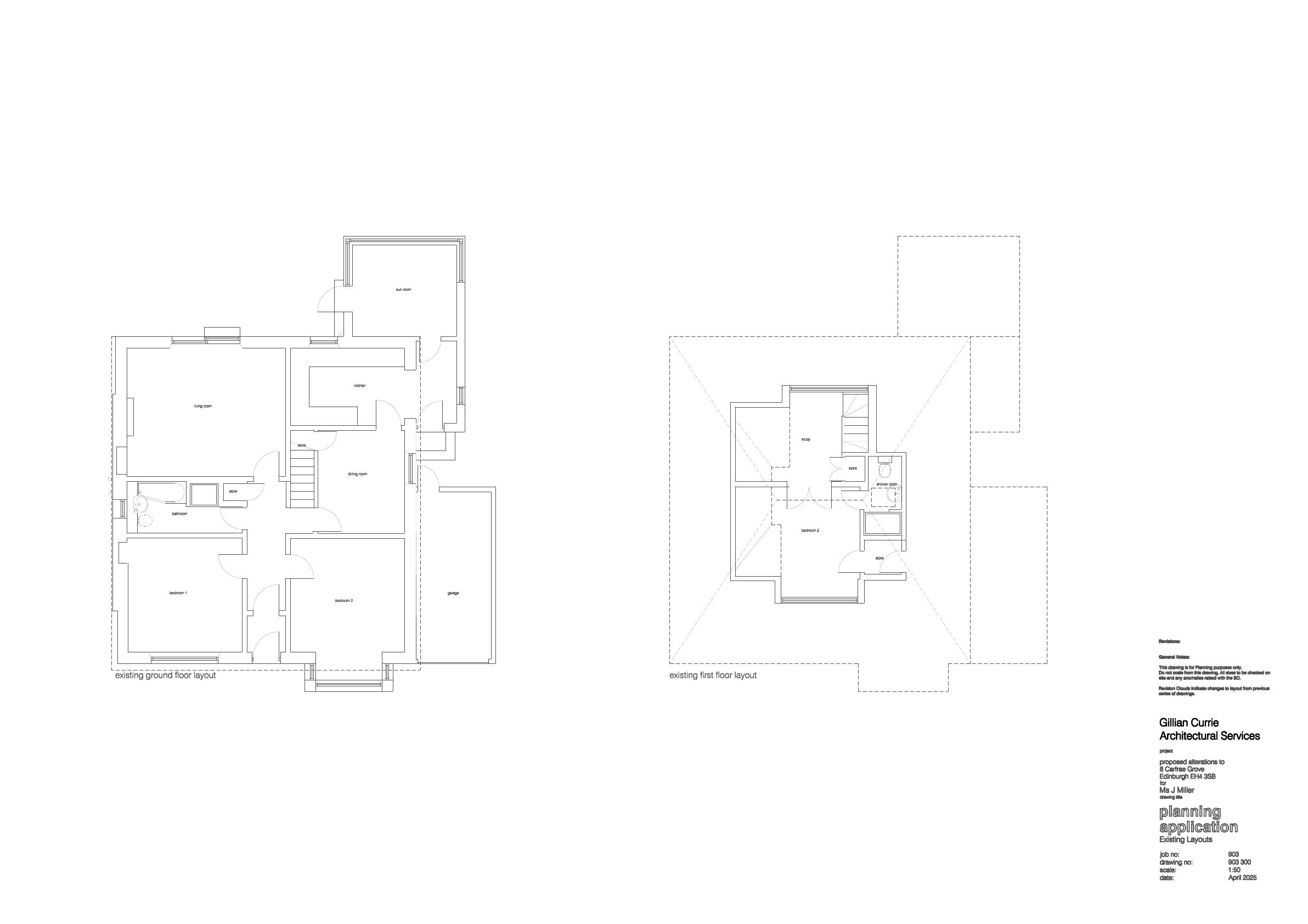
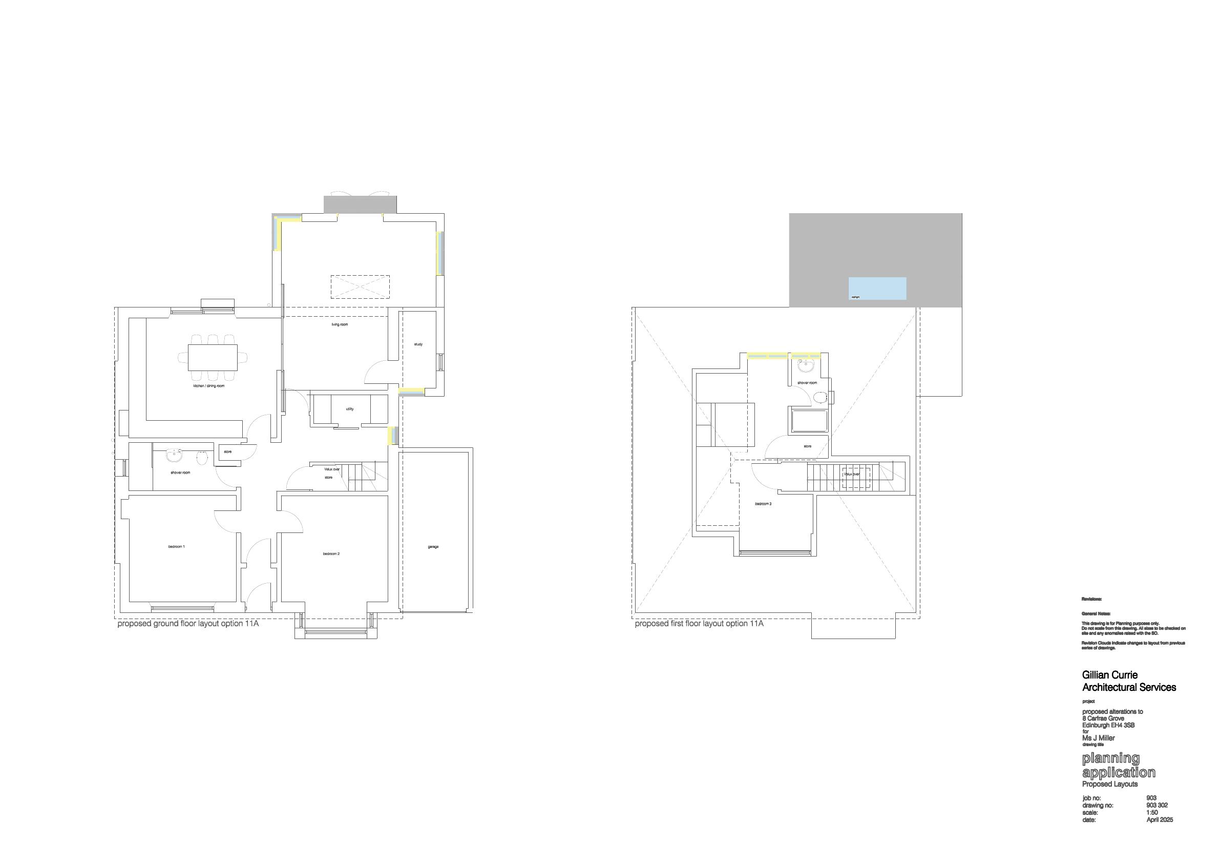
Single-storey rear extension expands kitchen-living area and remodels internal layout; roofline and front aspect stay unchanged, works confined to back garden. .

Status: Application GrantedCategory: Extensions & EnlargementsReceived: 15 May 2025

Core Details

Reference
25/02526/FUL
Address
8 Carfrae Grove Blackhall Edinburgh EH4 3SB
Status
Application Granted
Category
Extensions & Enlargements
Impact Scale
3/10

Timeline

Received
Validated
Last Scraped
Record Created

Additional Application Data

Latitude
55.9590039
Longitude
-3.2611079

Application Summary

AI Summary

Single-storey rear extension expands kitchen-living area and remodels internal layout; roofline and front aspect stay unchanged, works confined to back garden. .

Original Description

Internal alterations and enlarged single storey rear extension to detached domestic dwelling.

Supporting Documents (5)