Planning application

25/02531/LBC

21 George Iv Bridge Edinburgh EH1 1EN

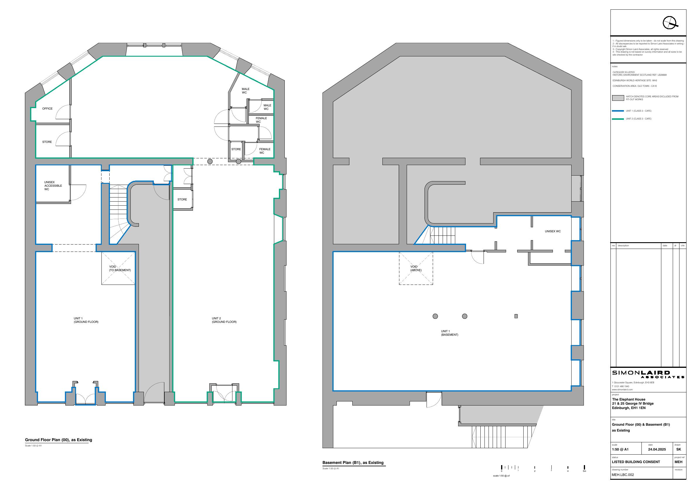
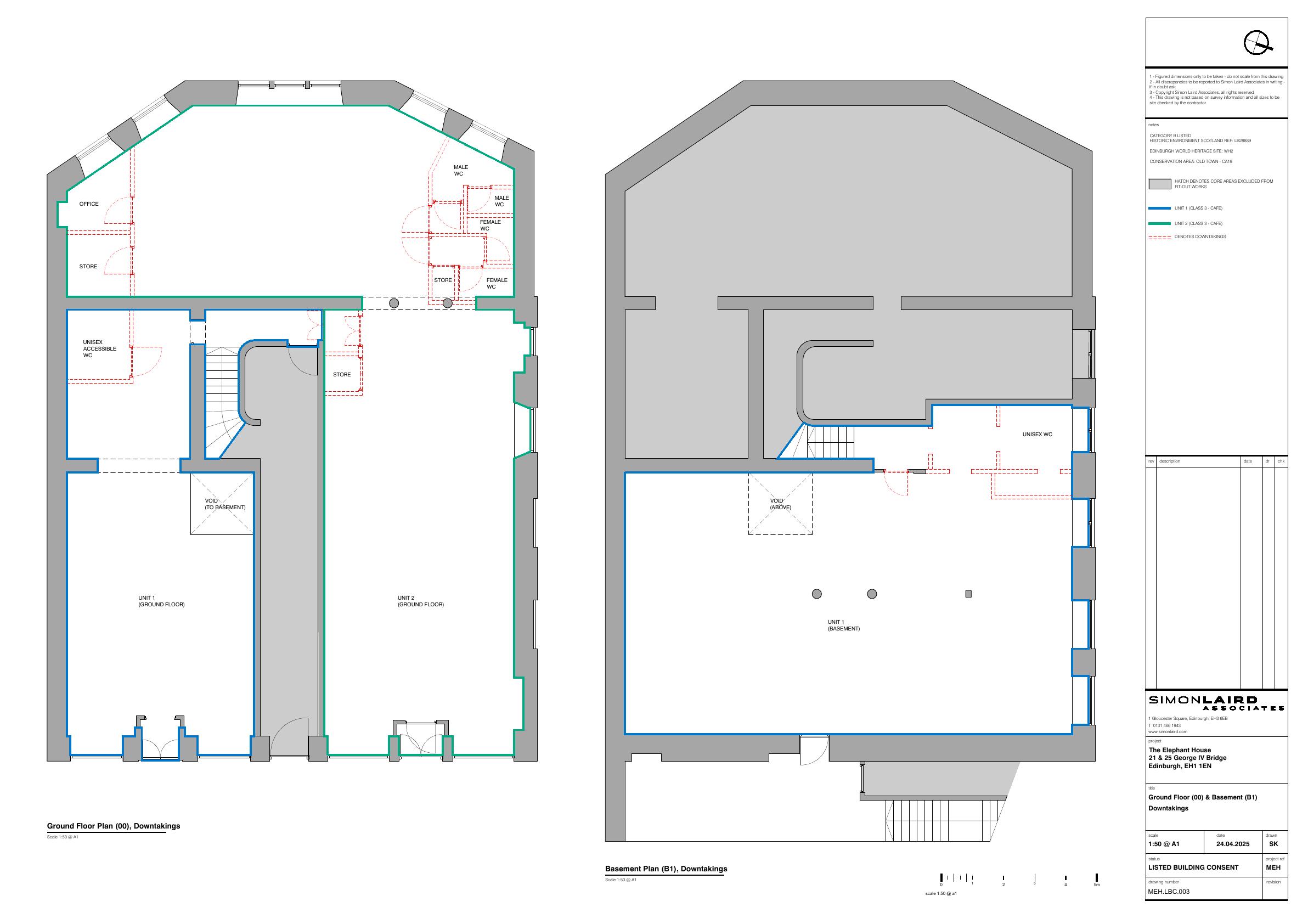
Restores listed former caf/retail at 213-215 George IV Bridge after fire; repairs faade, reconfigures ground & basement for retail/caf, new WCs, servery, staff rooms, no extensions. .

Status: Application GrantedCategory: Internal Works & AccessibilityReceived: 16 May 2025

Core Details

Reference
25/02531/LBC
Address
21 George Iv Bridge Edinburgh EH1 1EN
Status
Application Granted
Category
Internal Works & Accessibility
Impact Scale
3/10

Timeline

Received
Validated
Last Scraped
Record Created

Additional Application Data

Latitude
55.9475731
Longitude
-3.1917366

Application Summary

AI Summary

Restores listed former caf/retail at 213-215 George IV Bridge after fire; repairs faade, reconfigures ground & basement for retail/caf, new WCs, servery, staff rooms, no extensions. .

Original Description

Alterations to restore the premises following a fire, refurbish the interior to return the property to a useable condition, restore the exterior of the building.

Supporting Documents (5)