Planning application

25/02534/CLP

2 Haymarket Terrace New Town Edinburgh EH12 5JZ

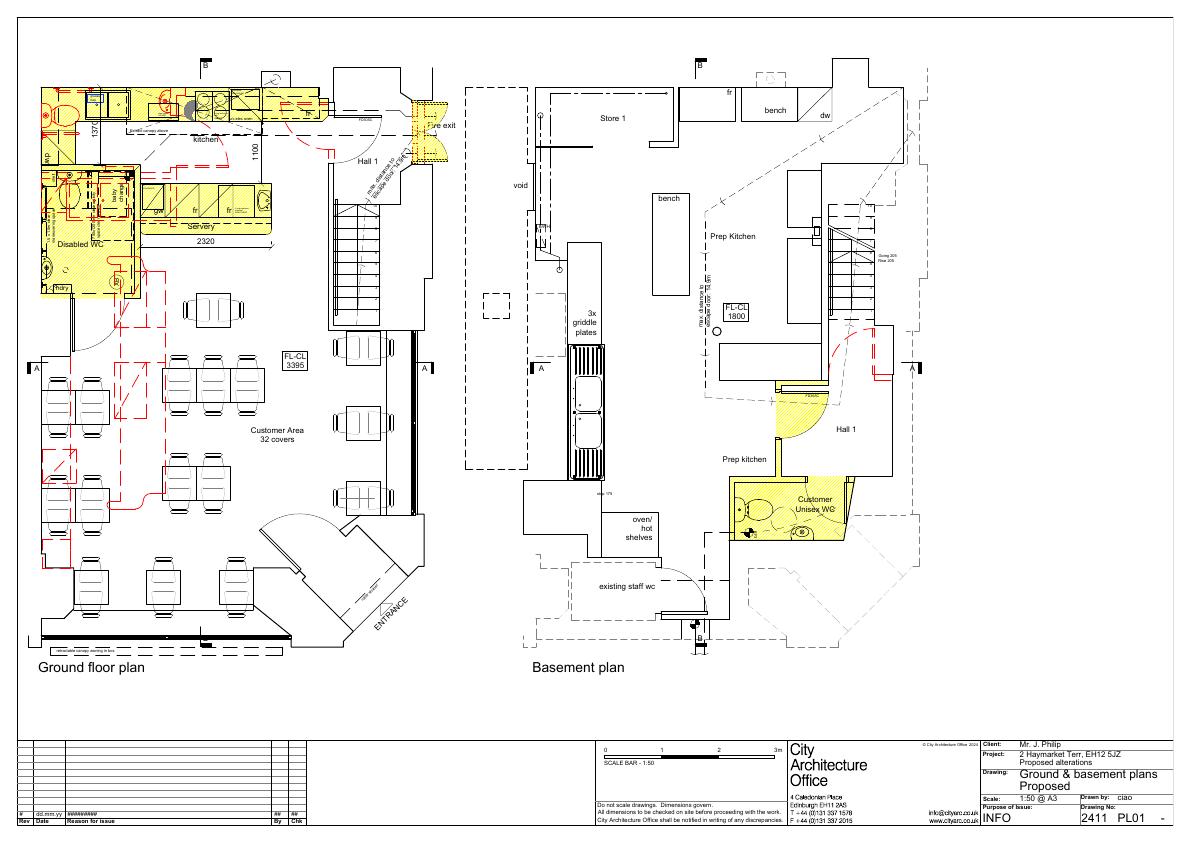
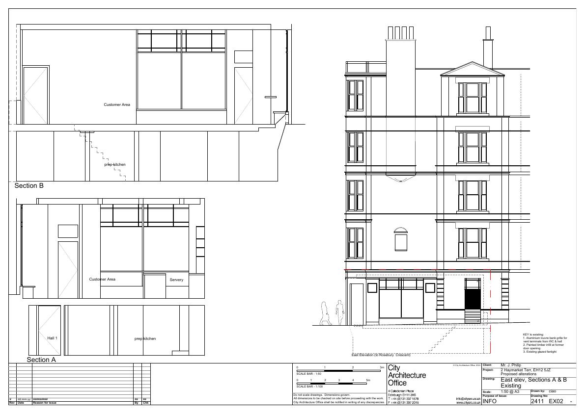
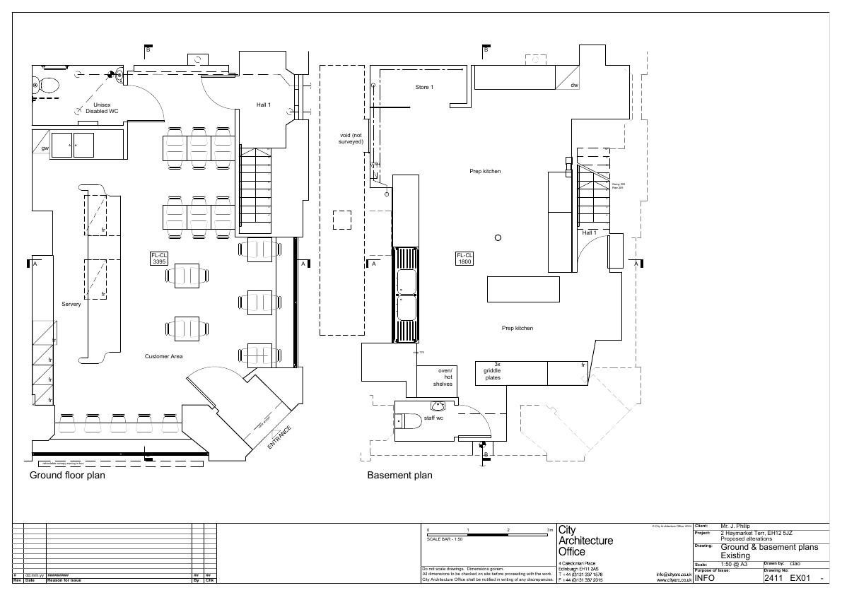
Cafe refit with roof-height extract flue inside existing chimney, revamped kitchen, new accessible WCs, and rear fire-exit door; no external bulk added. .

Status: Application GrantedCategory: Mechanical Plant, Flues & VentilationReceived: 16 May 2025

Core Details

Reference
25/02534/CLP
Address
2 Haymarket Terrace New Town Edinburgh EH12 5JZ
Status
Application Granted
Category
Mechanical Plant, Flues & Ventilation
Impact Scale
3/10

Timeline

Received
Validated
Last Scraped
Record Created

Additional Application Data

Latitude
55.9459899
Longitude
-3.2193315

Application Summary

AI Summary

Cafe refit with roof-height extract flue inside existing chimney, revamped kitchen, new accessible WCs, and rear fire-exit door; no external bulk added. .

Original Description

Alterations to existing cafe premises to provide kitchen extract ventilation to roof level via an internal chimney flue liner and internal alts to kitchen & WCs. Install fire exit door.

Supporting Documents (4)