Planning application

25/02543/LBC

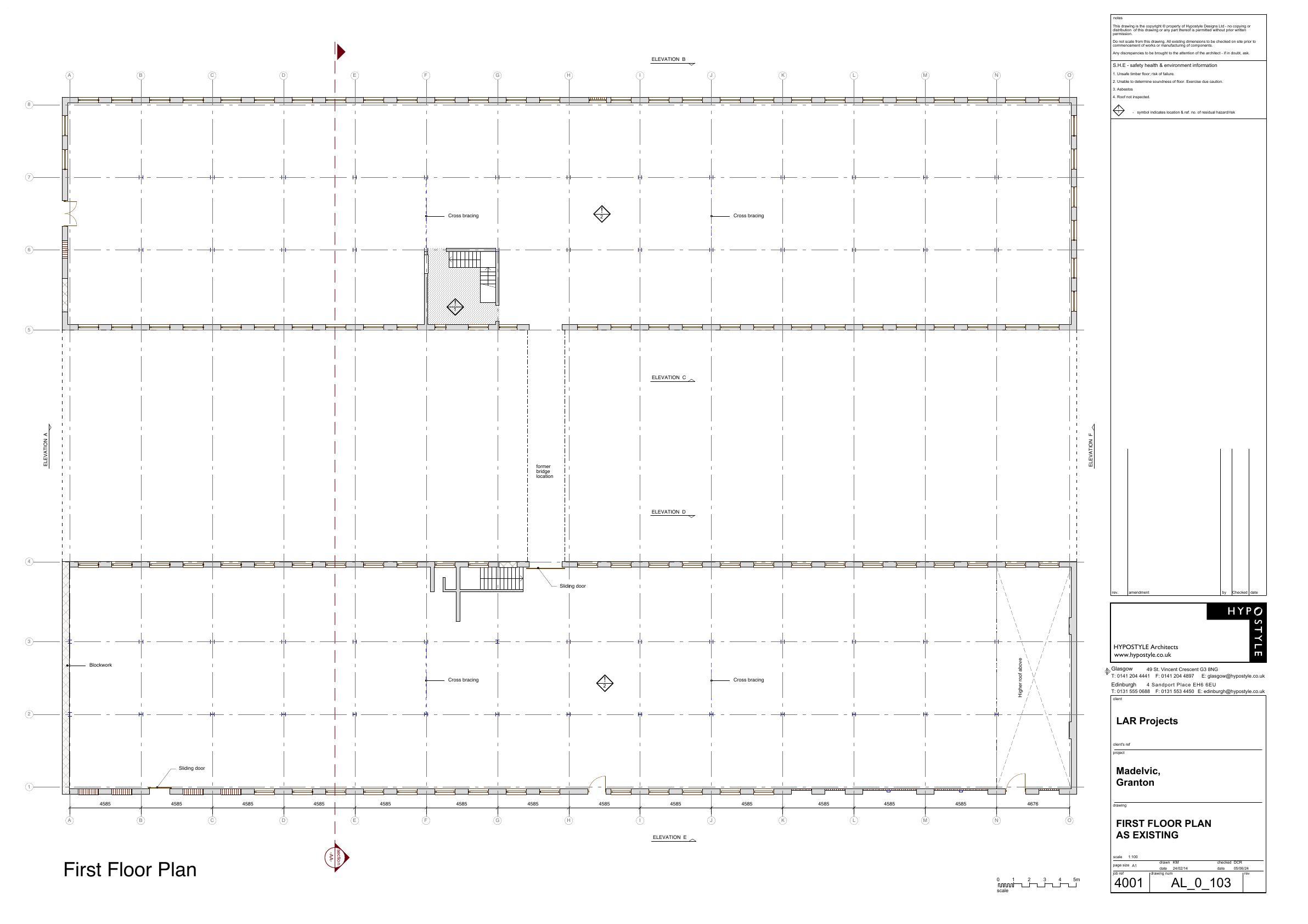
Land 93 Metres West Of Madelvic House Granton Park Avenue Edinburgh

Historic Madelvic Works converted into 28 two-storey townhouses, brick faades kept, new windows/doors added, internal courtyards introduced, frontage lines Waterfront/Granton Park Avenue.

Status: Application GrantedCategory: Change of Use & ConversionsReceived: 16 May 2025

Core Details

Reference
25/02543/LBC
Address
Land 93 Metres West Of Madelvic House Granton Park Avenue Edinburgh
Status
Application Granted
Category
Change of Use & Conversions
Impact Scale
6/10

Timeline

Received
16 May 2025
Validated
16 May 2025
Last Scraped
3 October 2025
Record Created
22 May 2025

Application Summary

AI Summary

Historic Madelvic Works converted into 28 two-storey townhouses, brick faades kept, new windows/doors added, internal courtyards introduced, frontage lines Waterfront/Granton Park Avenue.

Original Description

Alterations and change of use of former Madelvic Works buildings to form 28 N. townhouse dwellings (as amended).

Related Applications (1)

  • 25/02028/FULAwaiting Assessment(17 April 2025)

    Variation seeks removal of Condition 4 from approved scheme 23/01068/FUL, potentially relaxing operational limits without altering the permitted build form. .

Supporting Documents (5)