Planning application

25/02549/FUL

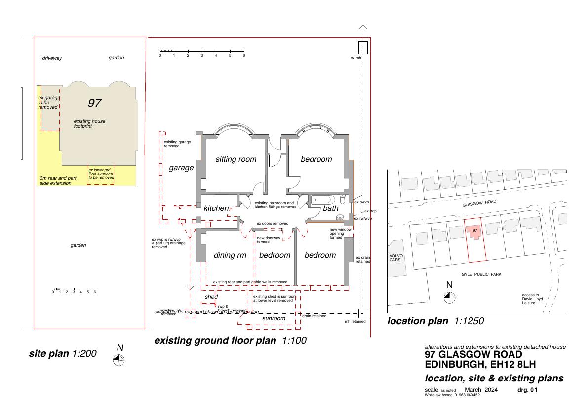
97 Glasgow Road Gogar Edinburgh EH12 8LH

Transforms single-storey bungalow into two-storey 6-bed house: 3 m rear/side extension, new roof, integrated garage, open-plan kitchen-living to garden, demolition of sunroom, shed and chimneys. .

Status: Application GrantedCategory: Extensions & EnlargementsReceived: 16 May 2025

Core Details

Reference
25/02549/FUL
Address
97 Glasgow Road Gogar Edinburgh EH12 8LH
Status
Application Granted
Category
Extensions & Enlargements
Impact Scale
6/10

Timeline

Received
Validated
Last Scraped
Record Created

Additional Application Data

Latitude
55.9393196
Longitude
-3.3237227

Application Summary

AI Summary

Transforms single-storey bungalow into two-storey 6-bed house: 3 m rear/side extension, new roof, integrated garage, open-plan kitchen-living to garden, demolition of sunroom, shed and chimneys. .

Original Description

Alter and extend existing detached house (resubmission)

Supporting Documents (5)