Planning application

25/02559/CLP

24 Buie Brae Kirkliston EH29 9FB

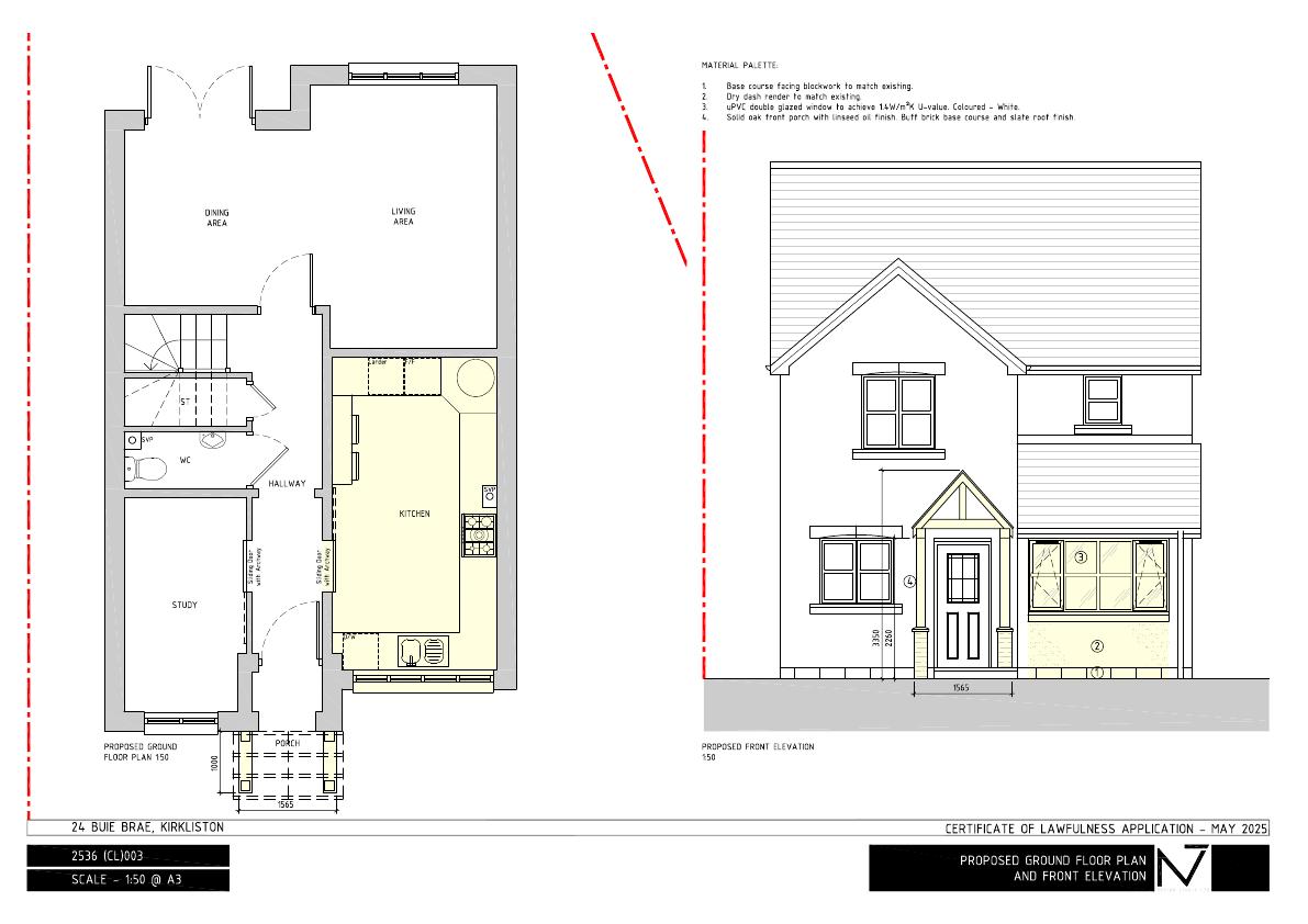
Integral garage replaced by bay-windowed kitchen/study and a 1.5 m pitched-roof porch added; footprint up slightly, height unchanged, materials to match house.

Status: Application GrantedCategory: Extensions & EnlargementsReceived: 16 May 2025

Core Details

Reference
25/02559/CLP
Address
24 Buie Brae Kirkliston EH29 9FB
Status
Application Granted
Category
Extensions & Enlargements
Impact Scale
3/10

Timeline

Received
Validated
Last Scraped
Record Created

Additional Application Data

Latitude
55.9559932
Longitude
-3.4134498

Application Summary

AI Summary

Integral garage replaced by bay-windowed kitchen/study and a 1.5 m pitched-roof porch added; footprint up slightly, height unchanged, materials to match house.

Original Description

Proposed front porch and garage conversion.

Supporting Documents (4)