Planning application

25/02569/FUL

49 Alnwickhill Road Edinburgh EH16 6LP

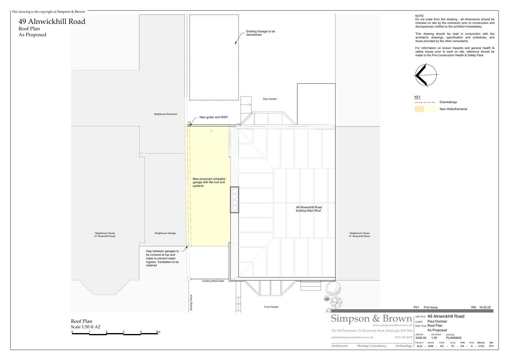
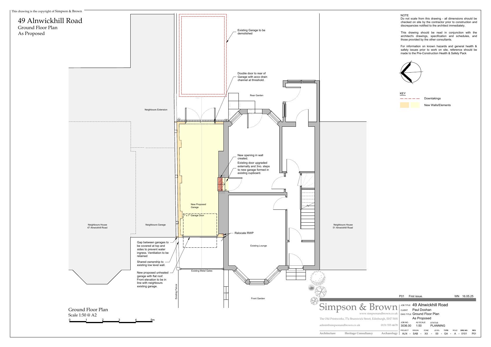
Rear garage demolished; new unheated flat-roof, single-storey garage built tight to boundary, aligning with neighbours structure, minor wall opening and drainage adjustments only. .

Status: Application GrantedCategory: Outbuildings & Ancillary StructuresReceived: 19 May 2025

Core Details

Reference
25/02569/FUL
Address
49 Alnwickhill Road Edinburgh EH16 6LP
Status
Application Granted
Category
Outbuildings & Ancillary Structures
Impact Scale
2/10

Timeline

Received
Validated
Last Scraped
Record Created

Additional Application Data

Latitude
55.9125903
Longitude
-3.1682887

Application Summary

AI Summary

Rear garage demolished; new unheated flat-roof, single-storey garage built tight to boundary, aligning with neighbours structure, minor wall opening and drainage adjustments only. .

Original Description

Demolition of existing garage and erection of new garage.

Supporting Documents (5)