Planning application

25/02606/FUL

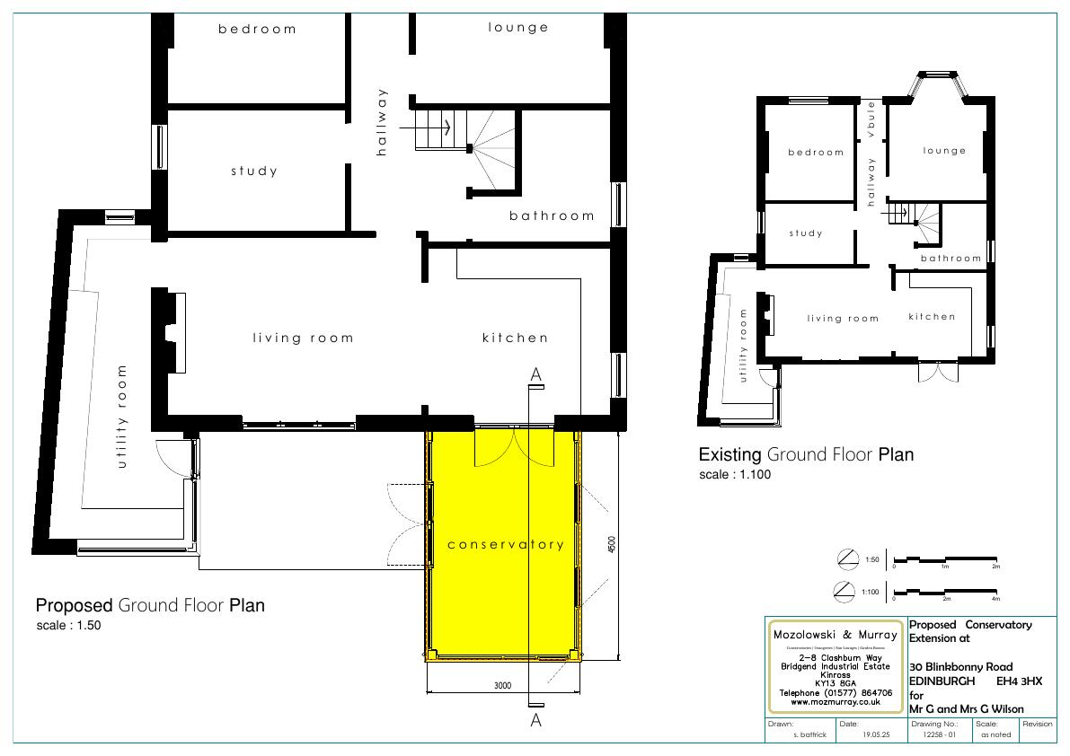
30 Blinkbonny Road Edinburgh EH4 3HX

Rear of 30 Blinkbonny Rd to gain a 3 m 4.8 m hardwood glass conservatory with bronze anti-sun roof and automated vents; single-storey, screened from street, low neighbour impact. .

Status: Application GrantedCategory: Extensions & EnlargementsReceived: 20 May 2025

Core Details

Reference
25/02606/FUL
Address
30 Blinkbonny Road Edinburgh EH4 3HX
Status
Application Granted
Category
Extensions & Enlargements
Impact Scale
2/10

Timeline

Received
Validated
Last Scraped
Record Created

Additional Application Data

Latitude
55.9525986
Longitude
-3.2379103

Application Summary

AI Summary

Rear of 30 Blinkbonny Rd to gain a 3 m 4.8 m hardwood glass conservatory with bronze anti-sun roof and automated vents; single-storey, screened from street, low neighbour impact. .

Original Description

Erection of hardwood conservatory to rear elevation.

Supporting Documents (5)